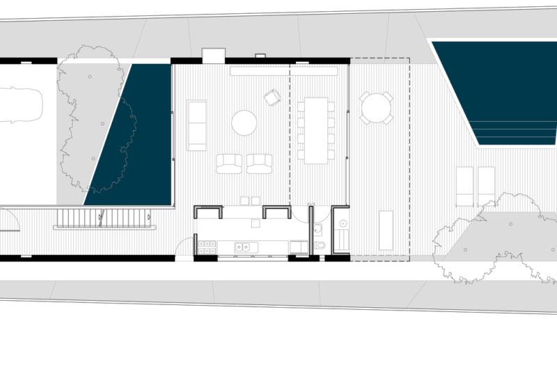
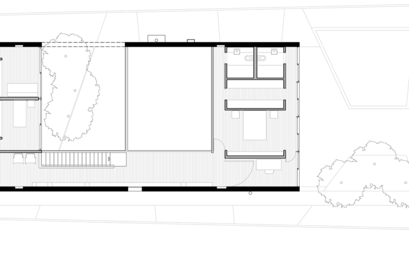
The Bacopari House is a project designed by UNA Arquitectos that started from the idea of mixing the nature with the architecture. It is located in São Paulo, Brazil and is surrounded by an impressive area of vegetation. A huge garden was created in order to permeate the house and to create the impression of living in the actual nature. The 8m height trees were brought here in the beginning of the works.
Everything here is all about greenery, from the gardens with reflecting pool to the playroom that opens to the courtyard.
As for the interior, the stairs are the main element that connects the wine cellar in the underground with the upper floor.
There are more open than closed spaces and the glass facades and the dark panels generate the dilution of the boundaries between the indoor and the outdoor spaces.
Photos by Leonardo Finotti
The Bacopari House is a project designed by UNA Arquitectos that started from the idea of mixing the nature with the architecture. It is located in São Paulo, Brazil and is surrounded by an impressive area of vegetation. A huge garden was created in order to permeate the house and to create the impression of living in the actual nature. The 8m height trees were brought here in the beginning of the works.
Everything here is all about greenery, from the gardens with reflecting pool to the playroom that opens to the courtyard.
As for the interior, the stairs are the main element that connects the wine cellar in the underground with the upper floor.
There are more open than closed spaces and the glass facades and the dark panels generate the dilution of the boundaries between the indoor and the outdoor spaces.
















More Similar Articles Like This
Lovelli Residence: Mediterranean-Style Dwelling in Bali
Superb Luxury Penthouse in Portomaso, Malta
Benjamin Moore Exterior Paint: Vibrant Shades for a Striking Home
Stunning Banyan Tree Ungasan Bali in Indonesia
Exquisite Crossacres Mansion In Surrey, England
Tips for Choosing the Right Blue Paint Color for Your Dining Room
Opulent Mandarin Oriental Hotel in Paris
Unique Click Clack Hotel In Bogota, Colombia