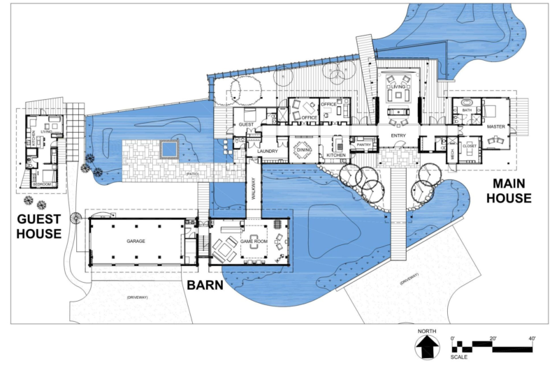
The EHA Family Trust Residence located in Wilson, Wyoming, United States is a 3,988 sqft residence finished in 2011 by Ward+Blake Architects. The house was elevated three feet above existing grade because of the low lying wetland.
The incredible view of the mountains surrounding the house is available even though there are mature trees all around. In order to benefit of low energy consumption, it was used a loop ground source heat pump for both heating and cooling.
The weather conditions here are very difficult and because of that, the architects choose to protect the house by using materials that required no maintenance.
Aside from its beautiful aspect, this home is also a money saver, the electrical consumption being reduced with the help of a specifying LED technology.
By choosing to own such a property, your lungs will breathe health and your eyes will only see beauty.
Photos by Roger Wade Studios














More Similar Articles Like This
Exceptional Coronado Bay Front Estate in California
The Superb Maradiva Villas Resort & Spa in Mauritius
Astonishing El Tovar by the Sea
Amazing Four Seasons Resort Bora Bora
Unique Click Clack Hotel In Bogota, Colombia
Marvelous Anantara Dhigu Resort
Saguaro Palm Springs by Joie de Vivre
Pure Perfection: Discover the Top White Paint Colors for a Flawless Décor