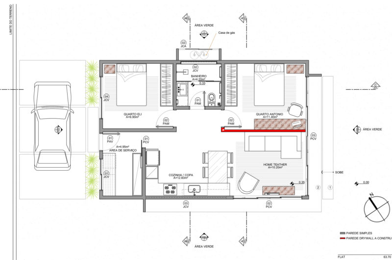
This relatively small but very comfortable home can be found in Brazil’s capital – Brasilia, and it was sketched out by 1:1 arquitetura:design. The house ensures 700 square feet of living space and features 2 bedrooms as well as a mini service area, a social bathroom and a gourmet kitchen.
As its name suggests, the Box house features a simple box-shaped look, but thanks to the designer’s ingenious compartmentation, it can definitely ensure ample comfort and utmost convenience for its owner. Two corners of the house were reserved for the bedrooms, while the other 2 are occupied by a service area and an entertainment room. The bathroom and the kitchen are placed in the middle, and they are equipped with all the necessary amenities and facilities.
All interior spaces were adorned with fabulous textures and warm, welcoming colors, while the furniture pieces flaunt distinct Brazilian designs. You can go on your own virtual tour of the Box House by browsing through the following images.




















More Similar Articles Like This
6 Garden and Lawn Tips to Get Ready for Spring
The Superb Maradiva Villas Resort & Spa in Mauritius
Plain Geometric Residence Designed by Lidija Dragisic
5 Ways to Turn Your Yard Into a Fancy Space
Stunning Sustainable Home in Costa Rica by SPG Architects
Different Types Of Foundations For Summer Houses and Garden Buildings
Astonishing El Tovar by the Sea
Spectacular Rooftop Apartment by Innocad