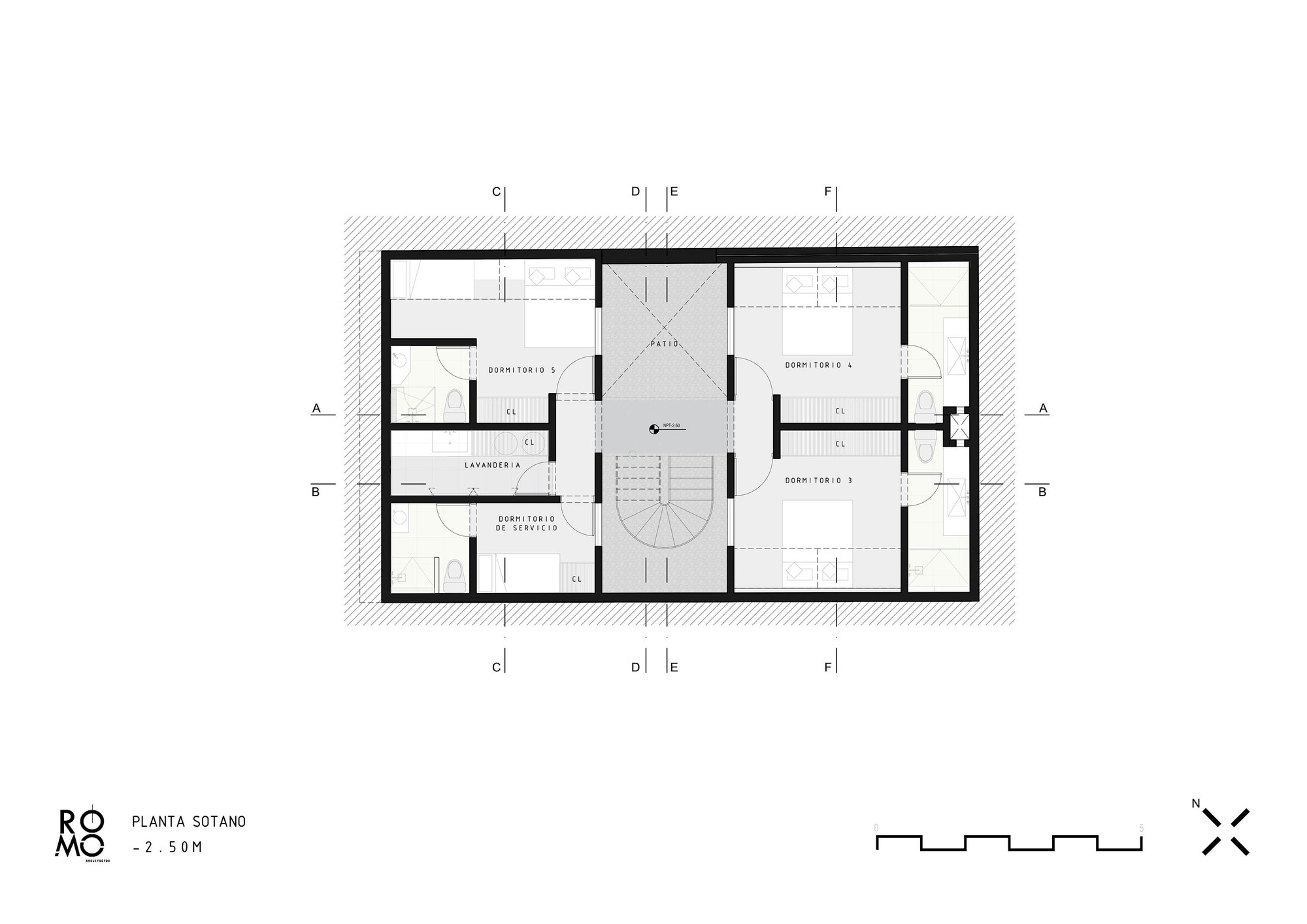
Completed in 2015 within Peru‘s Asia District, the S House was designed by Romo Arquitectos and features 1,915 square feet of living space. It was built to accommodate the owner’s family in great conditions, but it also flaunts auxiliary living arrangements for guests. Overall, the residence comprises six bedrooms, all of which receive ample natural light and boast high-end amenities. There’s also a naturally illuminated central courtyard, which focuses the circulation core.
Once inside, the residents enjoy immediate access to the most important social areas such as the living room, kitchen and dining area. Privacy from the street is ensured by a series of wood and concrete lattices. The second level of the S House incorporates a terrace as well as a pool area and a barbecue area, both of which benefit from fabulous panoramas of the sea. The materials used for this modern home include polished concrete, terrazzo, mosaic and exposed concrete.
From the architect:
The project is located on a lot with a single front on Bonaire Street, within the Club Las Palmas, south of Lima. The commission consists of designing a seasonal beach house for the client and his family, taking advantage of the terrain so that it could accommodate sub-families comfortably, including children and guests.
The solution is simple and emphasizes functionality, maximizing space without sacrificing lighting or ventilation. The house has 6 bedrooms with natural light, which enters through a large central courtyard that concentrates the circulation core. The design and housing concept also aims to maximize the social and meeting areas, which function as intermediate spaces between the inside and the outside, creating filter elements between different functions of the house.
The entrance is emphasized by a lintel flown which frames the common roofed area: Living Room, Kitchen and Guests Restroom. The lattices of concrete and wood are used as filters providing different levels of privacy to the house from the street.
The front block works as a prelude to enter both the private area of the bedrooms and the terrace area on the second level. On the terrace area, the block towards the front, the open living room and the main dining room get the views close to the street facade. On the back block, the pool area and barbeque sit on a more private location over the terrace, getting views of the sea and surroundings.
The distribution of social areas allows a large family, having different groups and meeting simultaneously, because the spaces function semi-independently. However, the terrace, as is characteristic of this beach houses becomes the social atmosphere of the house, connecting the two blocks through a bridge at the same level and allows one to appreciate the scenery.
The materials used are; exposed concrete, polished concrete, terrazzo and mosaic seek to equip the house of a semi-rustic atmosphere, highlighting some contrasting elements such as stairs, woodworking and furniture that give a contemporary character design of the house.
Location: Asia District, Peru
Architects In Charge : Lorena Rotalde, José Monteverde
Area: 178.0 m2
Project Year: 2015
Photography: Renzo Rebagliati Fotografía
Collaborators: Roberto Sevilla, Pablo Basto
Structure: Pablo Basto















More Similar Articles Like This
Astonishing El Tovar by the Sea
10 Different Types of Blue Paint Colors
Extraordinary Constance Halaveli Maldives Resort
Lawn Care Tips, The Basics For Each Season
Outstanding Bodrum Houses in Yalikavak, Turkey
Behr’s Brilliant Blues: 70 Shades of Stunning Paint Colors
Stunning Sustainable Home in Costa Rica by SPG Architects
70 Shades of Green: Benjamin Moore’s Vibrant Paint Colors