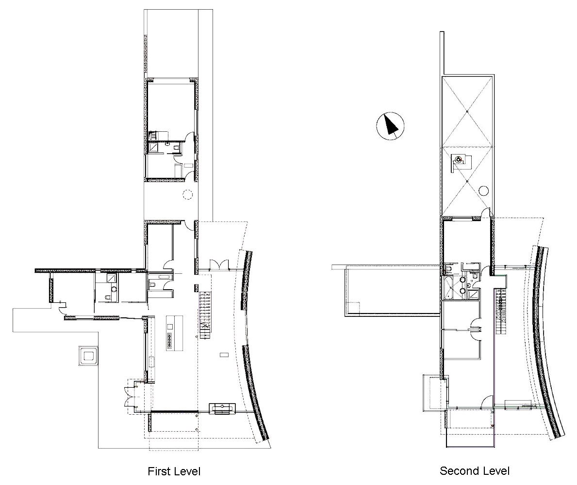
Casa G is a two-story home in Iceland, completed in 2009 by 




I'm Darcie George, a writer who explores home paint. My stories are about making homes look great with colours. Let's learn how to choose paints and create cozy, beautiful spaces together. Join me in discovering the magic of home painting!





More Similar Articles Like This
The Superb Maradiva Villas Resort & Spa in Mauritius
How Seattle Lawn Care Service Deals With Overgrown Lawns
Shadowed Depths: Vintage-inspired Paint Colors for Dark Basements
70 Shades of Green: Benjamin Mooreās Vibrant Paint Colors
Saguaro Palm Springs by Joie de Vivre
Amazing Four Seasons Resort Bora Bora
Boracay Resort & Spa in the Fascinating Philippines
Green Gables Home In Fairfield, Connecticut, United States