Designed by Atelier Riri and finished in 2014, the Breathing House was named as such because it boasts an incredible connection with its surrounding environment. The residential area in which it was built blends nicely with the natural environment and features a plethora of green areas. The owners are a young family with two children, and all family members wanted to live in an eco-friendly home that would offer comfortable and contemporary living conditions.
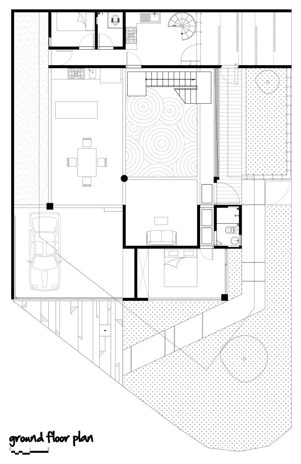
The ground floor of the building “breathes” naturally thanks to a series of holes inserted in the walls. As far as natural light is concerned, it enters through large windows and skylights. The indoor swimming pool is also illuminated by a skylight, and apart from offering relaxation and socialization opportunities, it lowers the indoor temperature in a natural way. The second floor incorporates a workspace, a living space and the bedrooms, while the third floor flaunts a roof garden that can support various outdoor activities.
The Breathing House was built using natural materials such as Gain Reinforced Cement and bricks. The residence features 3,444 square feet of living space, and it represents a fine example of contemporary, eco- friendly architecture.
From the architect:
Indonesia has a tropical climate. Tropical areas have rains almost the whole year through. For the reason of extreme weather, the home design should be able to accommodate the climate. The House Located in Griya Loka, Serpong in a suburb area near Jakarta (the capital city of Indonesia). These townships residential area is dense enough. The home design-oriented is focusing on natural resources for lighting and ventilation.
‘Breathing House’ is located in an area, which has been formed since the 80s. The site is blended with the surrounding environment as a green area. We optimize the potential asymmetrical shaped into the owner’s identity with a functional approach. The owner is a dynamic young family with two children. Both are eager to have a more comfortable dwelling, environmentally friendly and at the same time also represent personal identity. “Form follow function” became a common thread in keeping the desired characteristics.
Site follows the asymmetric land, forming a new grid and creating unexpected spatial experience. Elements of surprise are inserted into the flow of circulation between spaces. The ground floor as the public areas is designed to ‘breath’ naturally through the large ventilation that is provided from the holes pattern in some areas of the building. All space is centered at large void holes, which has skylights on it. Under the skylight there is indoor swimming pool, which also aims to lower the room temperature naturally.
The private bedroom area, workspace and living space are on the second floor. On the third floor, we designed a roof garden that serves as an additional open area resident to do outdoor activities and family events.
We used natural and green materials such as bricks, Gain Reinforced Cement (GRC), and recycle metal are explored in order to have a contemporary new design. This house also works independently with recycle rainwater to watering garden and car washing. The house is expected to represent the identity of an eco-friendly Indonesian modern family home.
Architects: Atelier Riri
Location: Serpong, Serpong, Serpong, Kota Tangerang Selatan 15310, Indonesia
Architect in Charge: Riri Yakub, Harindra Mahutama, Jeremiah Handoko
Area: 320.0 sqm
Project Year: 2014
Photographs: Teddy Yunantha, Adhityo Faturrochman
Contractor: Askala Indonesia












More Similar Articles Like This
Exploring the New World of Luxury Hoteling
The JKC1 House in Bukit Timah, Singapore
A Superb Italianate Mansion in California, USA
Unique Click Clack Hotel In Bogota, Colombia
Seamlessly Apartment by the Beach by ZZ Architects
Lawn Care Tips, The Basics For Each Season
Astonishing El Tovar by the Sea
Superb Luxury Penthouse in Portomaso, Malta