Black House Blues is a contemporary residence that was designed by Studija Archispektras and was built in 2014 in Kulautuva, Lithuania. It features 1,829 square feet of space and was constructed for a couple that enjoys listening to blues music on a daily basis. In order to make sure that they could enjoy their hobby in peace without disturbing their neighbors, the couple decided to have their house built in the middle of a beautiful forest.
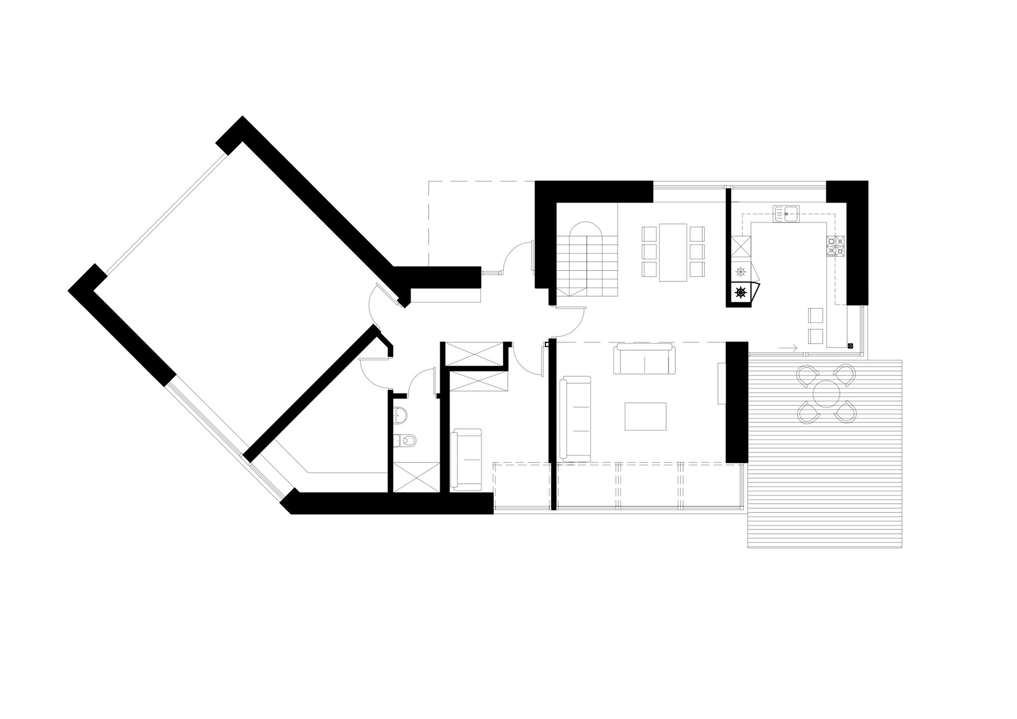
Black on the outside and mostly white on the inside, the residence stands ready to ensure utmost comfort due to its multiple amenities, facilities and high quality furnishings. The central living space boasts tall ceilings as well as large windows and glass doors that welcome plenty of natural light within throughout the day. The different levels of Black House Blues are linked by an interior staircase with wooden steps. Outside, there is a front yard that offers plenty of opportunities for relaxation and fun.
From the architect:
A man and his wife always loved to listen to the blues. A lot of blues. Loud – most of the times. And there could be no better place for their obsession than a forest. So, they built a black house there. With a white soul inside. The house that blues.
Family wished for a high central living space through which melancholic music would fill their home and reach every room. They would open the glass facade in summer and sit outside on a large wooden deck – an interstitial space between bluesy rhythms and peaceful birds singing.
They would be picking boletus for dinner in their front yard and let the wild nature thrive right into the kitchen. They would never forget to have some good white wine with a couple of friends. And they got it all. And they will live long enough in a house that always blues.
Architect In Charge: Aidas Kalinauskas, Ignas Kalinauskas, Vaidas Tamošiūnas
Manufacturers: Wienerberger
Area: 170.0 sqm
Year: 2014
Photographs: Juozas Kamenskas













More Similar Articles Like This
Astonishing El Tovar by the Sea
Lawn Care Tips, The Basics For Each Season
Opulent Mandarin Oriental Hotel in Paris
Shadowed Depths: Vintage-inspired Paint Colors for Dark Basements
Heavenly Lily Beach Resort & Spa In Huvahendhoo, Maldives
Marvelous Anantara Dhigu Resort
Santa Barbara Style Home in Paradise Valley, Phoenix
The Superb Maradiva Villas Resort & Spa in Mauritius