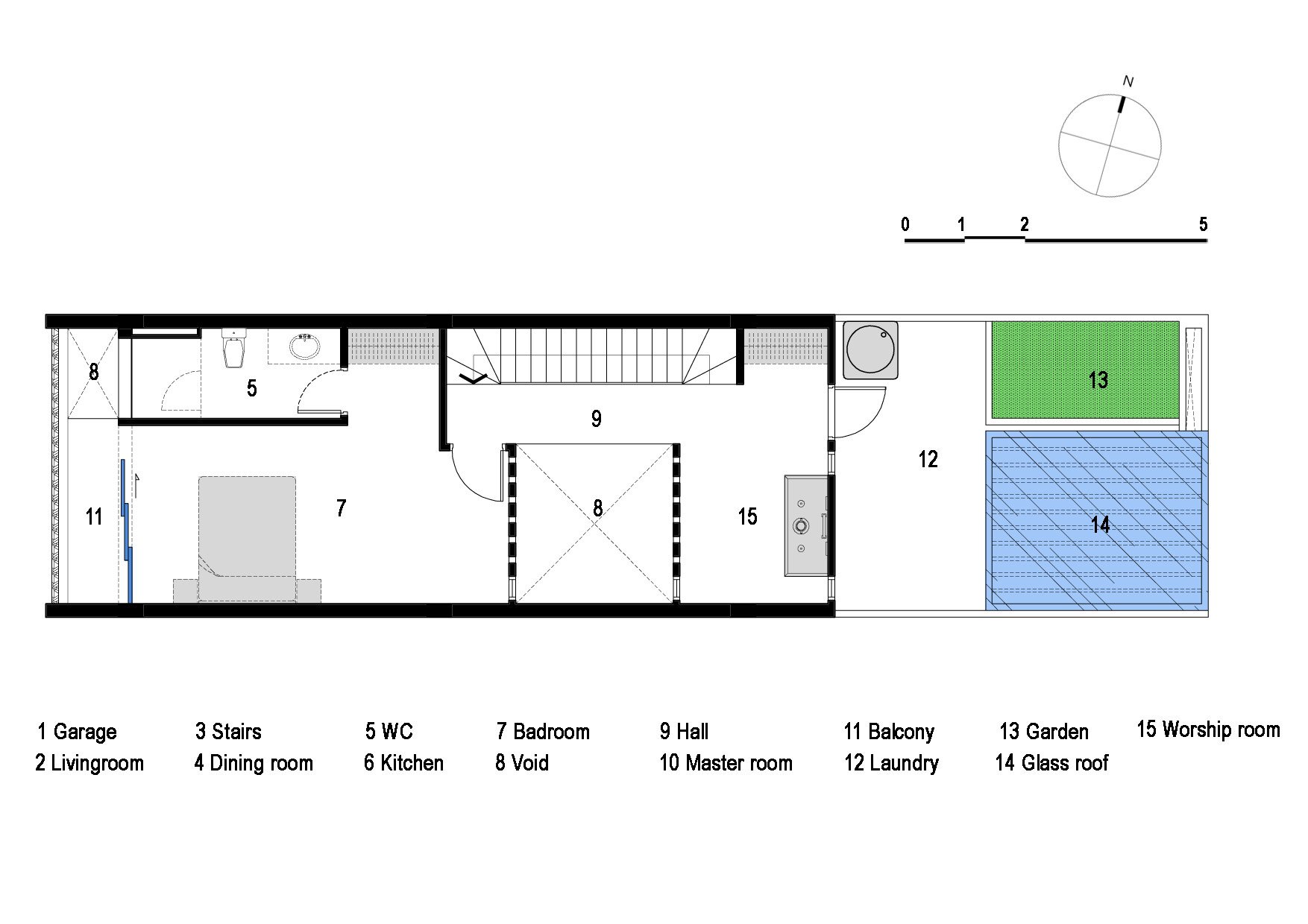
Built in 2015 for a young couple that wanted to be able to enjoy the privacy and comfort of living in their own home, the 21 House is located within a low populated area in Thanh Hoa, Vietnam. It offers 968 square feet of living space and rises on three levels, all of which are linked by an interior staircase with seemingly floating wooden steps. The home was sketched out by TonTon-Group, and it features two primary voids. It also incorporates trees in its construction, as the owners are particularly fond of them.
Even though all living areas boast their own charm, the living room is perhaps the most impressive space within the abode. It is spacious, welcoming, flooded with natural light and furnished with high quality pieces. It enjoys immediate access to the interior staircase and flaunts a large sofa s well as a sizeable flat-screen TV.
From the architect:
21 House is located in a new urban of Thanh hoa province, which is a very sparsely populated area. The concept of the design was for a young family with their parents, and they wanted to have a new house of their own: “The open space inside but close space outside”. We agreed with them.
The house has three factors: natural lighting, ventilation and open space inside; on the other hand, the house faces the West that would be very hot in summer day so we just think that the concept needs to be a special idea. One thing we was really impress was that the clients like trees, they want to sleep in a room where they can see green leaves when they wake up each morning. From all these things, we gave them an idea, which we suitable for them
The client did not want their house like thousands of other houses in Vietnam; therefore, we created their house with two main voids. Using the void like a good impression, and the other spaces around it were connected to each other to create the special views. Besides, the staircase and corridors were designed to be not a simple and boring path but a continuous and sequential space which becomes a living space.
- Location: Thanh Hoa City’s Project Management Social-Economic Development, Điện Biên, Lam Son Ward, Thanh Hoa City, Thanh Hoa, Vietnam
- Area: 90.0 sqm
- Project Year: 2015
- Photographs: My Anh Nguyen












More Similar Articles Like This
These Top Tips Will Help You to Turn Your Garden into the Ultimate Glamping Site!
Benjamin Moore Exterior Paint: Vibrant Shades for a Striking Home
Wonderful Yachting Club Villas at Elounda Beach by Davide Macullo Architects
The Superb Maradiva Villas Resort & Spa in Mauritius
Seamlessly Apartment by the Beach by ZZ Architects
Pure Perfection: Discover the Top White Paint Colors for a Flawless Décor
Different Types Of Foundations For Summer Houses and Garden Buildings
The Superb Villa Verai on Phuket Island, Thailand