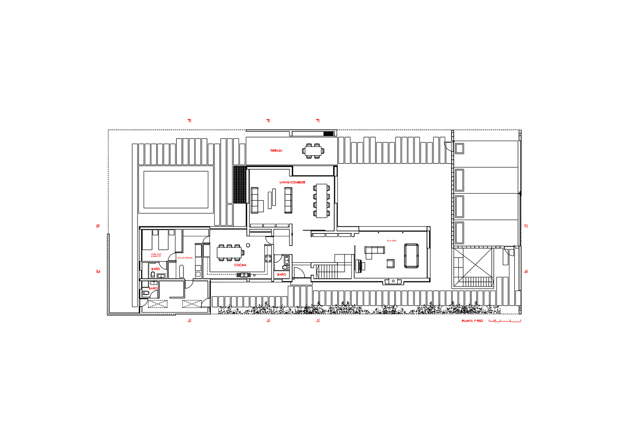
Renovated using high quality materials such as concrete, travertine pavement, aluzinc and Corten steel, the V House is located in Las Condes, Chile, and it boasts 5,166 square feet of living space. The original residence was built in the 1960s and featured two floors as well as angled roofs. It included public spaces and service areas on the ground level, while its bedrooms were located on the first floor. The architects decided to remove all non-structural walls as well as the original roofs in order to recreate this house with modernism and comfort in mind.
The second floor received an extension and now comprises the bedrooms as well as a roof terrace that can be accessed from the inside and from the outside. A part of the roof incorporates a solarium and several solar panels that provide hot water for the home and its swimming pool. Last but not least, the architects replaced the former boiler room with a modern gymnasium, and they also added a workspace underneath the parking area.
From the arhitect:
V house is a renovation and extension of a existing house designed and builted in the late sixties.
Originally the house consisted in a two levels building, with inclinated roofs, that included public spaces and services on the ground floor and bedrooms in the first floor. The renovation consisted in remove all the original roofs, demolish non structurals walls of the ground floor, extend this and reconfigurate and redo newly the same program in a bigger surface.
The second floor was extended also and contains the bedrooms.
Besides we create a roof terrace with access from the interior and exterior in order to have an extension of the yard on the roof serving like solarium and balcony of the surrounding area improving the insulation of the house. In this level we locate also solar panels contributing with the heating water of the house and the pool.
Under the parking we incorporate a place of work and a gym in what was formerly the boiler room.
The materiality of the house is a mix of concrete in the new walls and in the slab of the interior, travertine pavement in all the house and corten steel and aluzinc revetment for the exteriors in all the facades that are ventilated in order to increase the insulation of the house.
Architects: Mathias Klotz
Location: Las Condes, Las Condes, Santiago Metropolitan Region, Chile
Area: 480.0 sqm
Project Year: 2011
Photographs: Nico Saieh
Architect Collaborator: Héctor Hormazábal
Structure: Patricio Stagno
Construction: Estructuras Cordillera
Landscape: Francisca Saelzer













More Similar Articles Like This
Gorgeous And Spacious Home In Sunset Strip
A Superb Italianate Mansion in California, USA
70 Shades of Green: Benjamin Moore’s Vibrant Paint Colors
Saguaro Palm Springs by Joie de Vivre
Vibrant Wood Tones: Explore a Spectrum of Spray Paint Colors!
How Seattle Lawn Care Service Deals With Overgrown Lawns
Extraordinary Constance Halaveli Maldives Resort
Astonishing El Tovar by the Sea