The Through House represents the result of a superb renovation carried out by Dubbeldam Architecture + Design for a busy doctor. The 128-year old house was dark and unwelcoming, and so the architects had to find ingenious ways to flood it with natural light while expanding its interior living spaces. The team also worked on connecting the indoor areas with the outdoors by implementing sizeable floor-to-ceiling glass panes at the rear of the house.
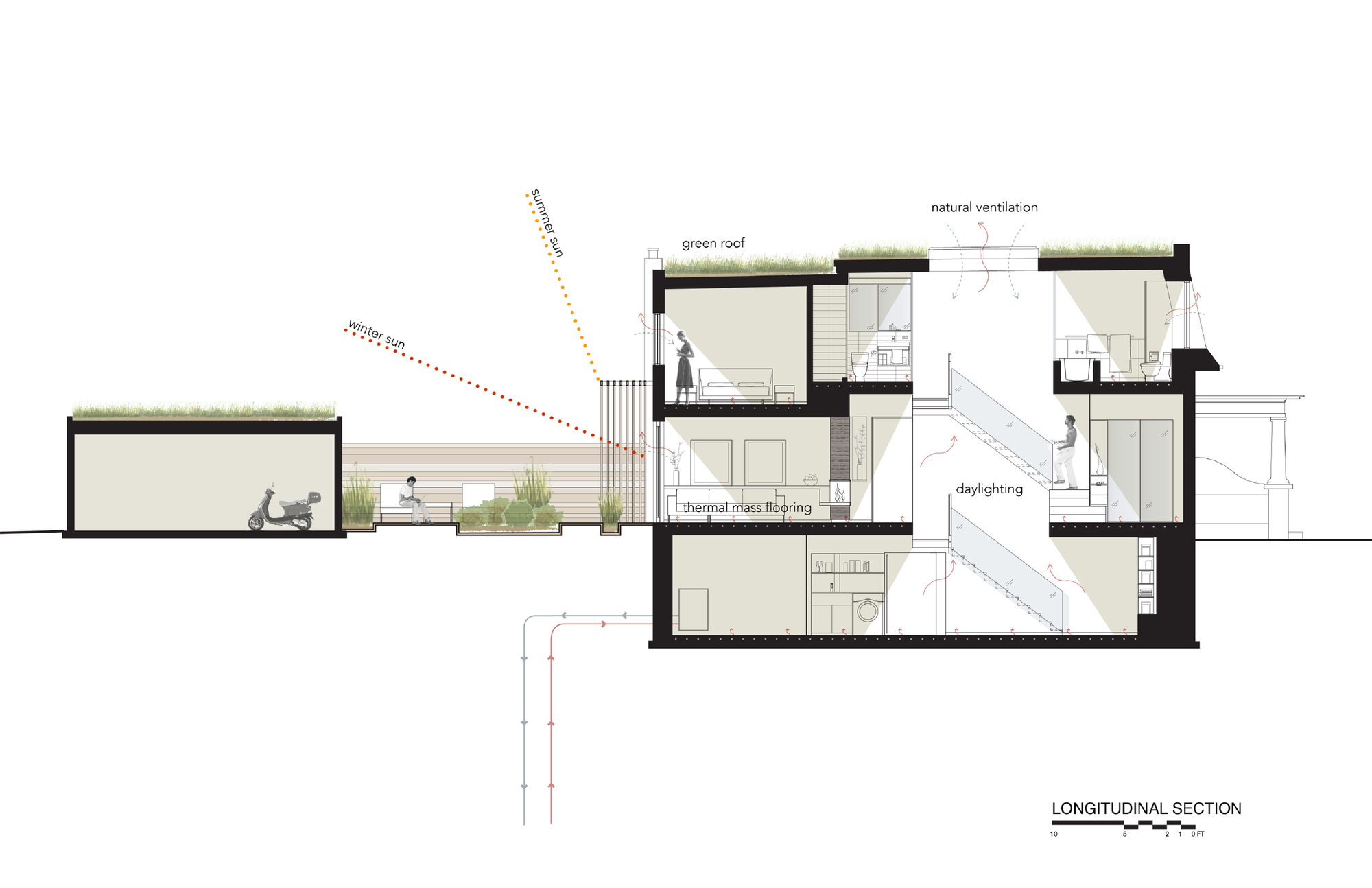
As far as sustainability goes, we should mention the operable skylight that illuminates the interior open staircase and facilitates cross-ventilation thus reducing the need for air conditioning. Furthermore, since the house boasts a flat roof, it can support a green roof that provides natural cooling while absorbing rainwater. Interior highlights of the Through House include high quality wooden finishes, state-of-the-art kitchen appliances, blurred glass panels and airy, open spaces.
From the architect:
A busy doctor commissioned the renewal of this 128 year-old house to fulfil his desire for a modern and light-filled home with a connection to the outdoors. Situated on a narrow lot in a dense downtown neighbourhood, the renovation of this 135 s.m. residence also aimed to provide increased living space on the interior.
However, in order to preserve the intimate rear garden, the design challenge was to ‘expand’ the interior space without increasing the footprint of the house. This was accomplished by a rethinking of traditional programme, utilizing built-in place elements and changes in ceiling heights to define spaces rather than walls, and by creating a powerful visual connection with the small backyard to extend the living space.
The dark, cramped interior was carved out to create bright, airy spaces connected by an open plan. Materials and built-ins are designed to emphasize linearity – horizontal lines of rift cut white oak millwork, linear divisions of cabinets and display units, stacked strips of industrial felt on the fireplace, and long porcelain tiling with a linear pattern; they create the perception of expanding and stretching the space and direct the eye through the house towards the rear garden.
The design also focuses on connecting the indoors with the outdoors. At the rear of the L-shaped house, large floor-to-ceiling glass panes on three sides blur the boundaries between inside and outside, extending the ground floor living space into the modest backyard. A continuity of materials carries through from the interior to the exterior on several planes, so that the exterior space is designed as an extension of the living space on the main floor.
The interior flooring material continues uninterrupted outside to form an outdoor patio, and the stone kitchen counter extends along the south wall through the dining room and outside morphing into the built-in BBQ. In the open corner, an overhead wood and steel trellis is designed as a transition from inside to outside, creating the feeling of an exterior ceiling and defining an intimate outdoor room. The trellis also helps to screen the south and west sun in summer, while allowing light to bathe interior spaces in winter.
At the centre of the house, lightfrom above brightens the interior and reduces the need for artificial lighting. A floating, open-riser stair is topped with a large overhead skylight, which allows light to penetrate deep into the interior. Varying shades of translucent blue panels as the stair guard unfold from the basement to the second floor, and on the upper level large panes of translucent glass define two bathrooms, drawing a bluish light into every area connected to the central stair.
The open stair and operable skylight also create natural ventilation with a powerful stack effect, enabling the owner to live without air conditioning. An extensive green roof cools the house’s flat roofs and absorbs rainwater runoff, further reducing the house’s ecological impact. The result is a light-filled, airy home and an intimate outdoor courtyard that creates a serene retreat for a busy urban professional.
Area: 1450.0 ft2
Photographs: Bob Gundu
Project Team: Heather Dubbeldam, Jason LeBlanc, Bindya Lad, Oliver Dang, Jacob JeBailey, Johanna Bollozos, Lynden Giles, Suzanna MacDonald
Contractor: DDF European Design














More Similar Articles Like This
Heavenly Lily Beach Resort & Spa In Huvahendhoo, Maldives
Boracay Resort & Spa in the Fascinating Philippines
70 Shades of Green: Benjamin Moore’s Vibrant Paint Colors
The Superb Maradiva Villas Resort & Spa in Mauritius
Pure Perfection: Discover the Top White Paint Colors for a Flawless Décor
Opulent Mandarin Oriental Hotel in Paris
Loving Luxury at Mardan Palace Resort, Turkey
Tips for Choosing the Right Blue Paint Color for Your Dining Room