Agraz Arquitectos are the ones who designed the 5,920-square-foot SJC House, situated in San Juan Cosala, Jalisco, Mexico. This beautiful weekend residence offers magnificent views of the Chapala Lake, being a getaway from the noisy and crowded city.
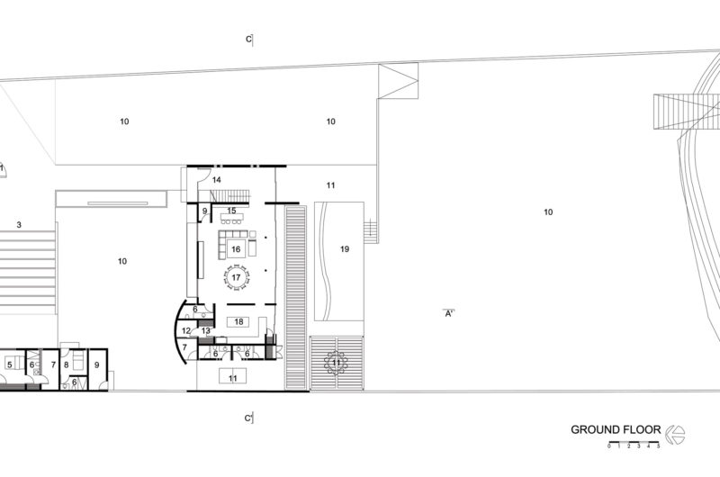
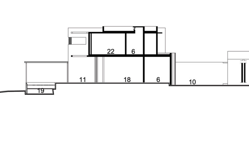
From the beginning the home impresses with its infinity pool and large terrace with sunshade, the perfect place to relax and have a great time with friends and family.
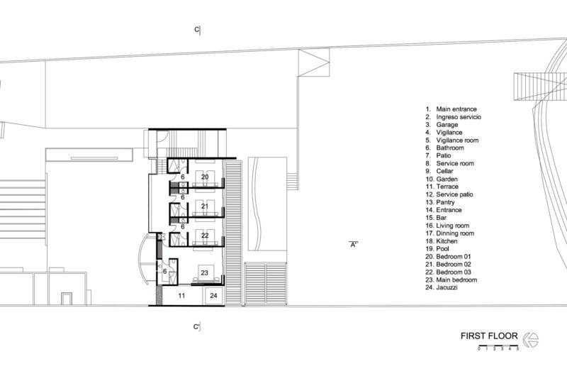
The two-story house features four bedrooms, each with bath and dressing room, as well as a main suite with private terrace, from which one can admire the San Juan Cosala Mountains. The dinning, living and kitchen are connected into a vast area, which also includes a bar and a wine cellar.
Photos by: Mito Covarrubias




































More Similar Articles Like This
Superb Luxury Penthouse in Portomaso, Malta
6 Garden and Lawn Tips to Get Ready for Spring
Behr’s Brilliant Blues: 70 Shades of Stunning Paint Colors
Secluded Naladhu Island in Maldives
Tips for Choosing the Right Blue Paint Color for Your Dining Room
Heavenly Lily Beach Resort & Spa In Huvahendhoo, Maldives
Exceptional Coronado Bay Front Estate in California
The Sophisticated Casa Villa Flamingo in Spain