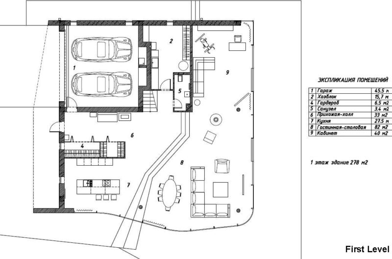
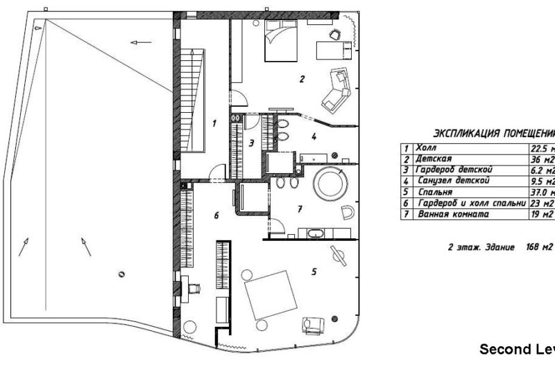
House on the Bay is a contemporary residence designed by Andrey Tiguntsev, a well-known Russian architect. The residence, which is situated in Mill Fold village on Irkutsk Reservoir, in Irkutsk Oblast, Russia, was designed for a family of three.
The House on the Bay, Russia
Darcie George
I'm Darcie George, a writer who explores home paint. My stories are about making homes look great with colours. Let's learn how to choose paints and create cozy, beautiful spaces together. Join me in discovering the magic of home painting!

























More Similar Articles Like This
Green Gables Home In Fairfield, Connecticut, United States
6 Garden and Lawn Tips to Get Ready for Spring
Stunning Banyan Tree Ungasan Bali in Indonesia
Behr’s Brilliant Blues: 70 Shades of Stunning Paint Colors
Spectacular Luxury House in Sarasota, Florida by DSDG Inc. Architects
The Superb Maradiva Villas Resort & Spa in Mauritius
The JKC1 House in Bukit Timah, Singapore
Gayton Road Residence by Paxton Locher Studio