After being abandoned in the 1960s, Chiles Residence by Tonic Design + Construction was re-designed becoming a piece of art in the middle of the nature.
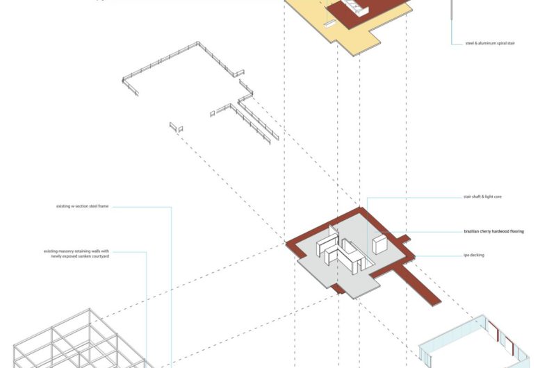
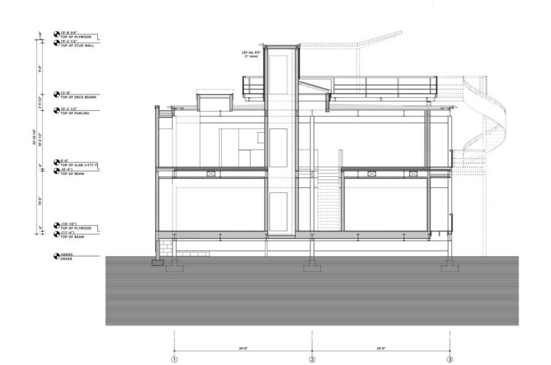
The contemporary 3500-square-foot house in Raleigh, North Carolina was designed and built for art collectors John and Molly Chiles. Besides its enormous dimension, this remarkable home provides both open perches and quiet retreats on its wooded hill site, in form and plan. A spectacular element is the striking spiral staircase that connects the main living level to the roof deck.
The rest of the house just needs to be admired from all its angles.




























More Similar Articles Like This
Seamlessly Apartment by the Beach by ZZ Architects
Beach House CN – A Superb Contemporary Home in Peru
Stunning Sustainable Home in Costa Rica by SPG Architects
The Superb Maradiva Villas Resort & Spa in Mauritius
A Superb Italianate Mansion in California, USA
Spectacular Rooftop Apartment by Innocad
Dreamy Oceanfront Chateau In West Vancouver, Canada
Santa Barbara Style Home in Paradise Valley, Phoenix