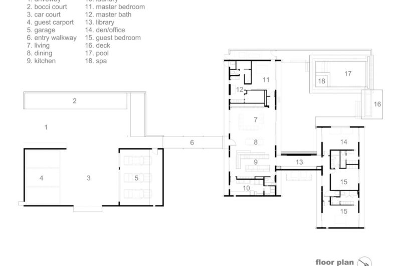
The Levin Residence designed by Ibarra Rosano Design Architects is located in Marana, Arizona and is characterized by simplicity, functionality and “collapsibility”, combining three rectangular volumes.
Its design as well as its interior may be simple but it’s very effective as it gives the impression of a warm, classy and cozy environment that makes one feel the privacy of his/hers own home. The space is well divided and used to its full capacity, everything being nicely put together.
Photos by Bill Timmerman
















More Similar Articles Like This
Opulent Mandarin Oriental Hotel in Paris
Loving Luxury at Mardan Palace Resort, Turkey
Saguaro Palm Springs by Joie de Vivre
Shadowed Depths: Vintage-inspired Paint Colors for Dark Basements
How Seattle Lawn Care Service Deals With Overgrown Lawns
The Sophisticated Casa Villa Flamingo in Spain
Stunning Sustainable Home in Costa Rica by SPG Architects
Lawn Care Tips, The Basics For Each Season