Clear Lake Cottage was created at the request of a family of five, who wanted a simple, modern and open home that could retain the “cottage feel”. This project was finished by MacLennan Jaunkalns Miller Architects.
This cottage located in Parry Sound, Ontario, Canada accommodates both program and outdoor spaces under one vernacular shape. The roof is rectilinear, symmetric and with a “playful” volume.
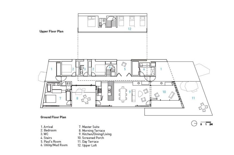
The house was built following the lines of the land and modeled by using its advantages. It consists of three volumes as it follows: a communal space, a bedroom bar and a master suite, in order to respond to the needs of the owners.
Because it is set in the middle of the woods, a strong connection can be spotted between the building and the nature.
Photos by Ben Rahn/A-Frame













More Similar Articles Like This
Green Gables Home In Fairfield, Connecticut, United States
Gayton Road Residence by Paxton Locher Studio
A Superb Italianate Mansion in California, USA
Boracay Resort & Spa in the Fascinating Philippines
Superb Luxury Penthouse in Portomaso, Malta
Different Types Of Foundations For Summer Houses and Garden Buildings
How Seattle Lawn Care Service Deals With Overgrown Lawns
Contemporary BO House In Envigado, Antioquia, Colombia