C House located in Santa Cruz, Bolivia, was completed by Sommet & Asociados in 2012. The home is integrated into a picturesque landscape with plenty of greenery and eclectic architecture. It consists of two horizontal volumes: the lowest one which is integrated in the landscape and the highest one that looks like floating in the air.
The project has the sense of a traditional and sensitive construction due to the use of stone and wood finishes.
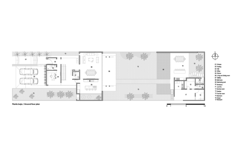
The ground floor is identified with the public spaces such as the living and dining room, the kitchen, the study, the bathrooms and the gallery.
A floating staircase is the liaison point between the hall of the ground floor and the small family living room which is flooded by natural light all day long.




















More Similar Articles Like This
Spectacular Rooftop Apartment by Innocad
Vibrant Wood Tones: Explore a Spectrum of Spray Paint Colors!
Pure Perfection: Discover the Top White Paint Colors for a Flawless Décor
A Superb Italianate Mansion in California, USA
Stunning Banyan Tree Ungasan Bali in Indonesia
Outstanding Bodrum Houses in Yalikavak, Turkey
Gorgeous And Spacious Home In Sunset Strip
These Top Tips Will Help You to Turn Your Garden into the Ultimate Glamping Site!