Empty Space Architecture designed the Godiva House located in Cascais, Portugal. The construction is a mix between fine architecture associated with simple geometry, noble materials, contemporary and innovative construction methods and artistic form.
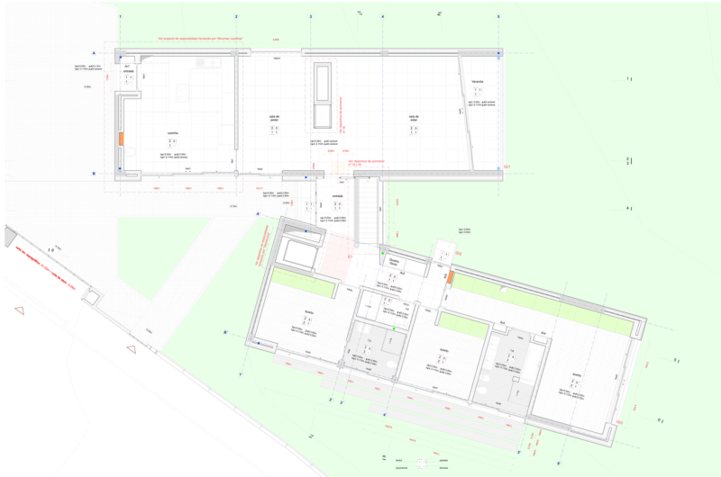
It gathers three containers of different dimensions: the South one was designed for the private space, the North one gathers the social spaces and the smaller central one is the main element of all formal and spatial organization of this project.
The garden is almost like a house where you can take long and nice walks but without the roof over your head.
It’s always nice when you have a lot of natural light in the privacy of your own home, and this one is flooded with light all day long.
When designing the house, a lot of attention was given to the specific characteristics of the materials and environmental sustainability.
Photos by João Morgado
























More Similar Articles Like This
Stunning Banyan Tree Ungasan Bali in Indonesia
Marvelous Anantara Dhigu Resort
Amazing Four Seasons Resort Bora Bora
Heavenly Lily Beach Resort & Spa In Huvahendhoo, Maldives
The Superb Maradiva Villas Resort & Spa in Mauritius
Spectacular Luxury House in Sarasota, Florida by DSDG Inc. Architects
Opulent Mandarin Oriental Hotel in Paris
Tips for Choosing the Right Blue Paint Color for Your Dining Room