This project is a renovation of a prewar shop-house in Singapore, Singapore that was created in 2010 by RichardHO Architects. It’s a modern construction that includes an indoor koi pond emphasized by a skylight with a retractable glass roof.
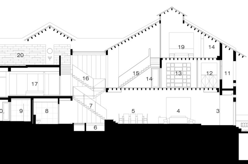
In order to protect the hierarchy of the space, the architects have designed a single living-dining-kitchen volume. To keep the shop house essence, two characteristic features were redefined: the skylight and the air well.
A water feature and a koi pond were introduced with the aim to highlight the fulcrum of the house.
The second storey consists of two wings: one accommodating the master bedroom and the ensuite bathroom and the other one housing the nursery and the daughter’s bedroom. The master bedroom is like a luxury hotel suite containing a master bathroom providing view of lush greenery.
The guest room that functions as the owners study is located in the attic where a 4m high glass door and glass wall are used to increase the sense of space.













More Similar Articles Like This
The Sophisticated Casa Villa Flamingo in Spain
Green Gables Home In Fairfield, Connecticut, United States
Stunning Sustainable Home in Costa Rica by SPG Architects
Santa Barbara Style Home in Paradise Valley, Phoenix
Benjamin Moore Exterior Paint: Vibrant Shades for a Striking Home
Lovelli Residence: Mediterranean-Style Dwelling in Bali
Extraordinary Constance Halaveli Maldives Resort
Best paint colors for the living room