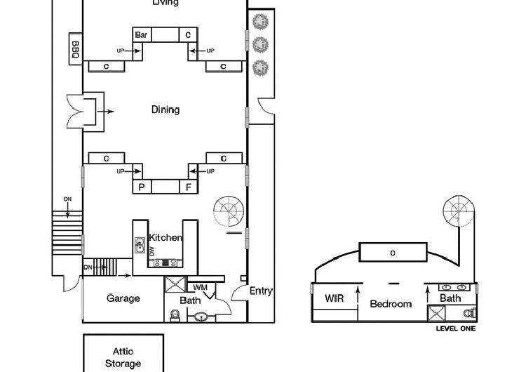
This beautiful residence is in fact the 1857 Mechanics Institute Hall transformed into a state-of-the-art inner city retreat. Located in South Yarra, Melbourne, Victoria, Australia, the home features a bedroom, two bathrooms and a living area. It impresses with its free-flowing spacious rooms and vaulted ceilings.
Mechanics Institute Hall Conversion
Darcie George
I'm Darcie George, a writer who explores home paint. My stories are about making homes look great with colours. Let's learn how to choose paints and create cozy, beautiful spaces together. Join me in discovering the magic of home painting!














More Similar Articles Like This
Benjamin Moore Exterior Paint: Vibrant Shades for a Striking Home
Shadowed Depths: Vintage-inspired Paint Colors for Dark Basements
Marvelous Anantara Dhigu Resort
Tips for Choosing the Right Blue Paint Color for Your Dining Room
Loving Luxury at Mardan Palace Resort, Turkey
Pure Perfection: Discover the Top White Paint Colors for a Flawless Décor
Exceptional Coronado Bay Front Estate in California
Behr’s Brilliant Blues: 70 Shades of Stunning Paint Colors