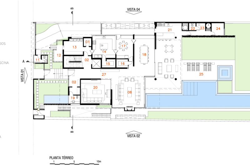
Spacious and luxurious, the remarkable MG Residence can be found in the city of Sao Paulo in Brazil, and it was completed in 2012. Sketched out by the expert architects at Reinach Mendonça Arquitetos Associados, this stunning home features almost 14,000 square feet of living space as well as 4 floors. The main living area can be found on the ground floor, which is directly connected to a remarkable swimming pool.
The lush, green garden that can be found at the rear of the home is overlooked by several lounging areas that are well suited for socialization and relaxation. Furthermore, since the residing family members are known to enjoy swimming as a past time, the residence also boasts a special swimming pool that is 82 feet long.
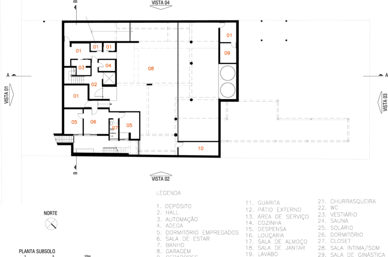
For extra convenience, and since the nearby street featured no parking spaces of its own, the MG Residence flaunts enough parking space for 10 cars at its basement level. Another interesting aspect regarding this special residence is the fact that its main living areas are connected and boast plenty of glass elements for a touch of transparency. These living areas are not linked via hallways or corridors but via a stunning atrium. Furthermore, double-height ceilings and glazed walls ensure a sense of spaciousness and coziness at the same time, thus enhancing the quality of life for all those who are fortunate enough to call this place home.
Photos by Nelson Kon





















More Similar Articles Like This
Gorgeous And Spacious Home In Sunset Strip
70 Shades of Green: Benjamin Moore’s Vibrant Paint Colors
Different Types Of Foundations For Summer Houses and Garden Buildings
Best paint colors for the living room
Unique Click Clack Hotel In Bogota, Colombia
Beach House CN – A Superb Contemporary Home in Peru
These Top Tips Will Help You to Turn Your Garden into the Ultimate Glamping Site!
Beautiful Apartment in Stockholm for $1 Million