A team of architects from Ricardo Moreno Arquitectos renovated this comfortable and spacious home in São Pedro do Estoril, Portugal in 2014. The house features 4,865 square feet of space and belongs to Ricardo Moreno himself, which is why the project was particularly challenging. The goal was to retain the outer walls of this old house from 1923 while making sure that it would still become a fine example of contemporary architecture.
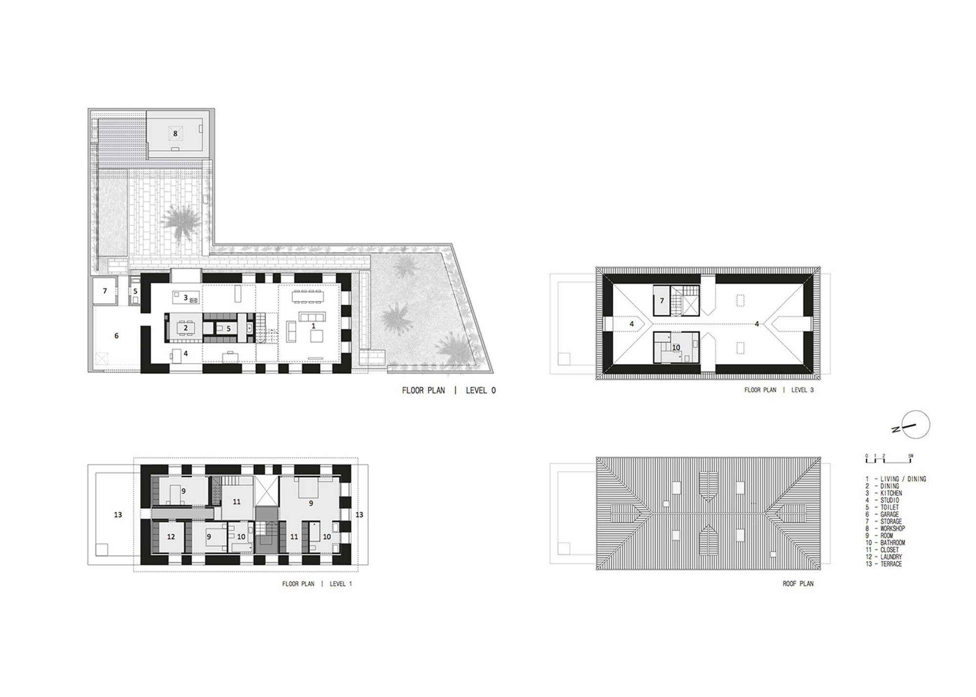
The entryway and the common areas such as the living room, kitchen and office are contained within a wooden volume, which is connected to other volumes with the help of a carved staircase. The private living areas are found within these other volumes, and they receive natural light through the building’s original windows.
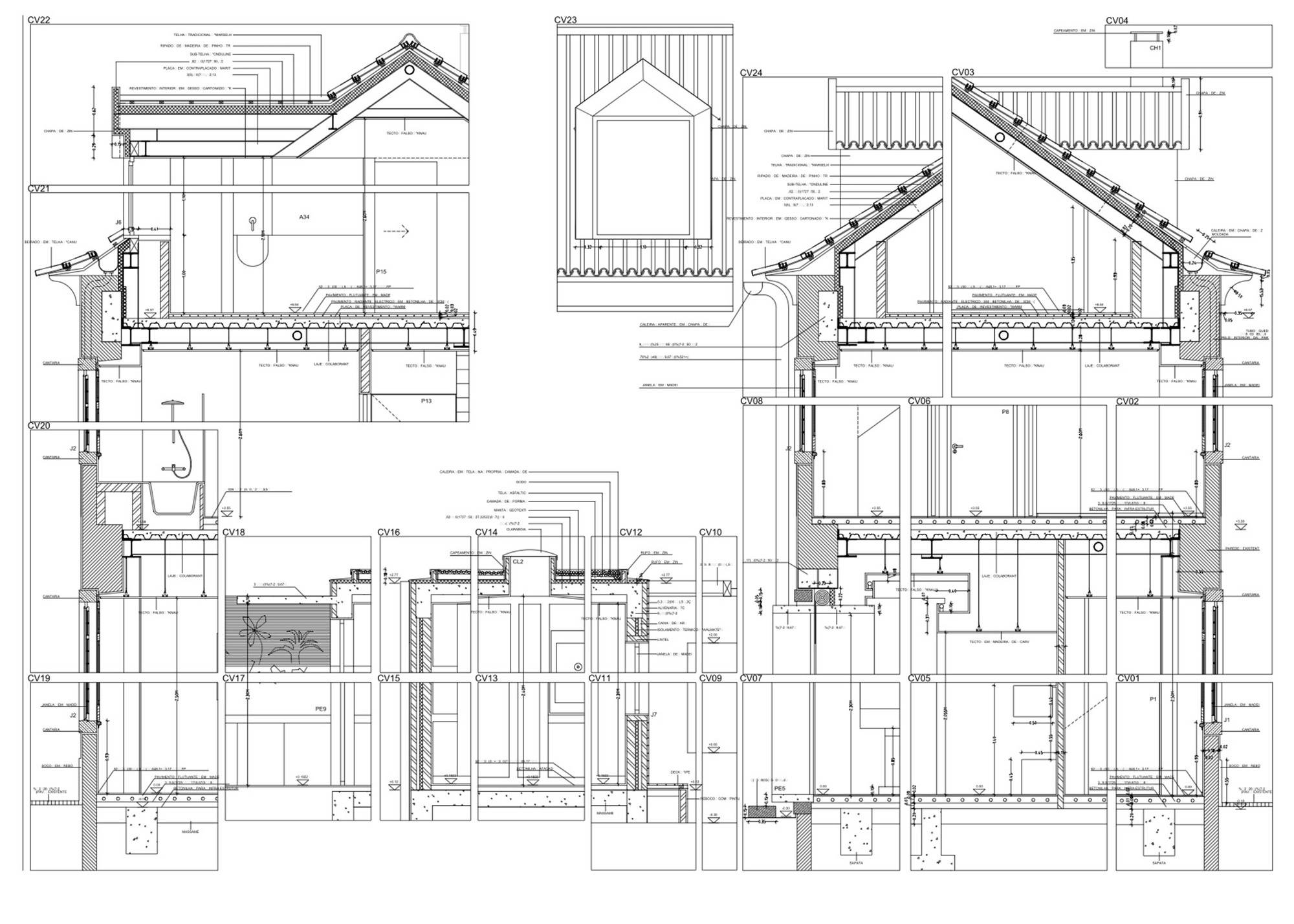
In order to ensure thermal comfort while keeping humidity in check, the architects covered the brick and stone masonry walls with a mix of lime-sand mortar and shredded cork. The materials used for the renovation are eco-friendly and recyclable.
From the architect:
In this 1923 year old house renovation project, the Architect Ricardo Moreno was faced with one of the most dificult tasks an Architect may have, to develop the design and construction of its own home.
In this House there was the concern to preserve the outer walls. This project intents to establish a sense of freedom considering the constraints of the existing house, seeking to recognize and identify the history and contemporary values as a bridge between two moments in time.
The entrance floor, to the common areas, is shown by a wooden volume that alocates and defines the program. The Living Room, the Kitchen and the Office. In that same volume the steps are carved to give access to other white volumes, suspended overhead, where the private areas are located. The introduction of these new volumes, that define the interior spaces of the house, accentuate the new intervention, iluminated by the windows of the old facade.
This work was a challenge and intent to understand the techniques and materials of the time, mandatory in this kind of construction. The outer walls, built of handmadebrick and stone mansory, were covered with lime-sand mortar, mixed with shredded cork in order to improve the thermal factor, to adjust the interior humidity to levels of human comfort, allowing the walls to ‘breath’ and being permeable to water steam. Thus, there was a concern to use natural ecological materials, totally recyclable and of low energy consumptation in the production process. In short, this is not only a sensible and conscious operation regarding the characteristics and conservation of the existing house, but also the introduction of a program that underlines and enhances the poetic and historic side enabling a communication with this new intervention.
Architects: Ricardo Moreno Arquitectos
Location: São Pedro do Estoril, 2765-529 Estoril, Portugal
Design Team: Filipe Nascimento, Mário Crespo
Area: 452.0 sqm
Project Year: 2014
Photographs: Ricardo Oliveira Alves
Construction company: LD&A
Landscaping: Ricardo Moreno
Structure: SIPCA
Special Installations: Hertz
Site Area: 541 m2




















More Similar Articles Like This
Tips for Choosing the Right Blue Paint Color for Your Dining Room
6 Garden and Lawn Tips to Get Ready for Spring
Exquisite Crossacres Mansion In Surrey, England
Pure Perfection: Discover the Top White Paint Colors for a Flawless Décor
Saguaro Palm Springs by Joie de Vivre
Beach House CN – A Superb Contemporary Home in Peru
Beautiful Apartment in Stockholm for $1 Million
Benjamin Moore Exterior Paint: Vibrant Shades for a Striking Home