Built in 2014 for an extended family that includes a couple as well as the husband’s parents, High Street is a lovely project signed by Alta Architecture. It was built in Melbourne, Australia and features a welcoming, comfortable interior that provides ample opportunities for relaxation and fun. The living room is the main social area and boasts a large L-shaped sofa as well as two chairs, a wooden coffee table and a flat-screen TV.
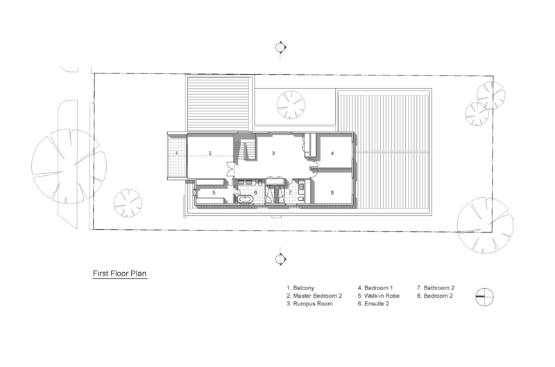
Decorations are based on natural plants and modern paintings that give off an atmosphere of fine taste and elegance. The residence features two floors and provides more than adequate accommodations for all family members. The ground floor includes accommodations for the guests as well as a gymnasium, the garage, a laundry room, the kitchen, a courtyard, the living room and the first master bedroom with its walk-in wardrobe and bathroom. The first floor comprises a balcony that ensures superb views of the courtyard, the second master bedroom, two more bedrooms, a rumpus room and a bathroom.
All in all, this house flaunts 7,588 square feet of living space, out of which 968 are occupied by the combined kitchen, living room and dining room space.
Photos by Our Media Design Studio



















More Similar Articles Like This
Santa Barbara Style Home in Paradise Valley, Phoenix
The Superb Villa Verai on Phuket Island, Thailand
Dreamy Oceanfront Chateau In West Vancouver, Canada
Different Types Of Foundations For Summer Houses and Garden Buildings
Secluded Naladhu Island in Maldives
Best paint colors for the living room
Unique Click Clack Hotel In Bogota, Colombia
The JKC1 House in Bukit Timah, Singapore