The endless sea and lush green trees arching in the wind can be admired in their entire splendor from the comfort of a luxurious 1,400 square-foot apartment called Exotica Sorento, which can be found on Madh Island in Mumbai, India. Aside from offering exquisite views of its surrounding environment, this masterpiece by GA design boasts spacious living areas, gorgeous decorations and an elegant, minimalistic allure that has the potential to impress at a glance.
The abode features a remarkable combination of white and black elements that provide contrast and continuity while giving off a sense of elegance and sophistication. High quality furniture pieces, leather upholstery, Satuario tiles and sheer curtains are some of the highlights of this modern apartment, but we should also mention the 2 balconies that allow the owner to admire the remarkable panoramas that we mentioned before.
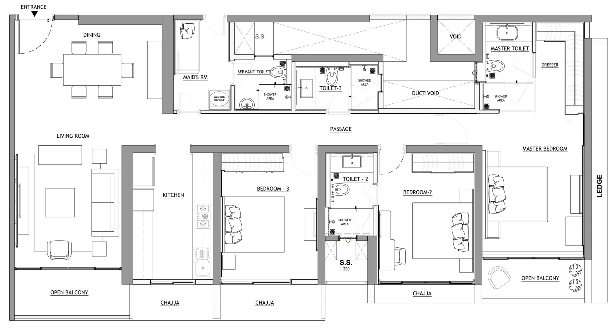
Accommodations include 3 bedrooms as well as a house cleaner’s room that has its own bathroom. The master bedroom features a large and comfortable bed, a flat screen TV, spotlight-based lighting arrangements and a glass bathroom.
From the GA design:
This residential apartment has been designed by GA design in Mumbai.
It is located in the lush greenery at Madh Island in Mumbai India, overlooking the sea.
This luxurious 1400 sq.ft. apartment has been carefully designed, keeping in mind the breathtaking view of the surroundings. This three bedroom apartment has 2 balconies and a maid’s room with an attached bathroom. The master bedroom has a walk-in wardrobe and a glass bathroom. The look of the apartment is minimalistic and breezy, yet very sophisticated. The white and black theme is a common feature in all the rooms and helps to maintain the continuity.
White walls, white upholstery and rich sheer curtains in white and grey lend openness to the space and make it look vast. Luxurious Satuario tiles have been used throughout the apartment, which help to give the perfect backdrop to the design elements. The extensive use of reflective surfaces on a white base have created a visually appealing and luxurious atmosphere. When combined with other elements like customised soft furnishings, exclusive wallpaper and stylish accessories, the space created is elegant and irresistible.
















More Similar Articles Like This
Contemporary BO House In Envigado, Antioquia, Colombia
Exquisite Crossacres Mansion In Surrey, England
Santa Barbara Style Home in Paradise Valley, Phoenix
Benjamin Moore Exterior Paint: Vibrant Shades for a Striking Home
How Seattle Lawn Care Service Deals With Overgrown Lawns
10 Different Types of Blue Paint Colors
Spectacular Luxury House in Sarasota, Florida by DSDG Inc. Architects
6 Garden and Lawn Tips to Get Ready for Spring