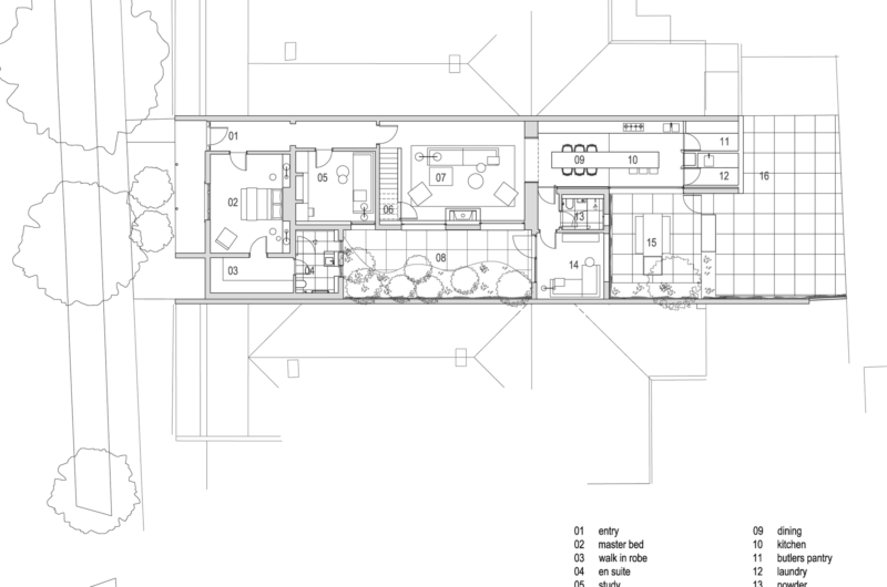
The Alfred Street Residence was designed by studiofour, and it is located in Prahran, Australia. The project team that consisted of Annabelle Berryman and Sarah Henry worked closely with the landscape designer 3/2 Jackson Street Toorak and completed this perfect abode in 2014.
Modern, spacious and aptly designed, the project involved the renovation of an older Victorian house. The ground floor was redesigned extensively in order to support the needs of the residing family. The connection between the indoors and the outdoors was enhanced with the help of a series of sliding doors. The kitchen is linked to a courtyard found at the rear of the residence, which can be used for outdoor dining or other leisurely activities.
The interior arrangements feature a beautiful combination of white and pale brown timber elements that contrast beautifully with each other while giving off a sense of purity, elegance and fine taste.
Photos by Shannon McGrath














More Similar Articles Like This
Marvelous Anantara Dhigu Resort
Exceptional Coronado Bay Front Estate in California
The Superb Maradiva Villas Resort & Spa in Mauritius
The Superb Villa Verai on Phuket Island, Thailand
Best paint colors for the living room
Lawn Care Tips, The Basics For Each SeasonÂ
Beach House CN – A Superb Contemporary Home in Peru
Extraordinary Constance Halaveli Maldives Resort