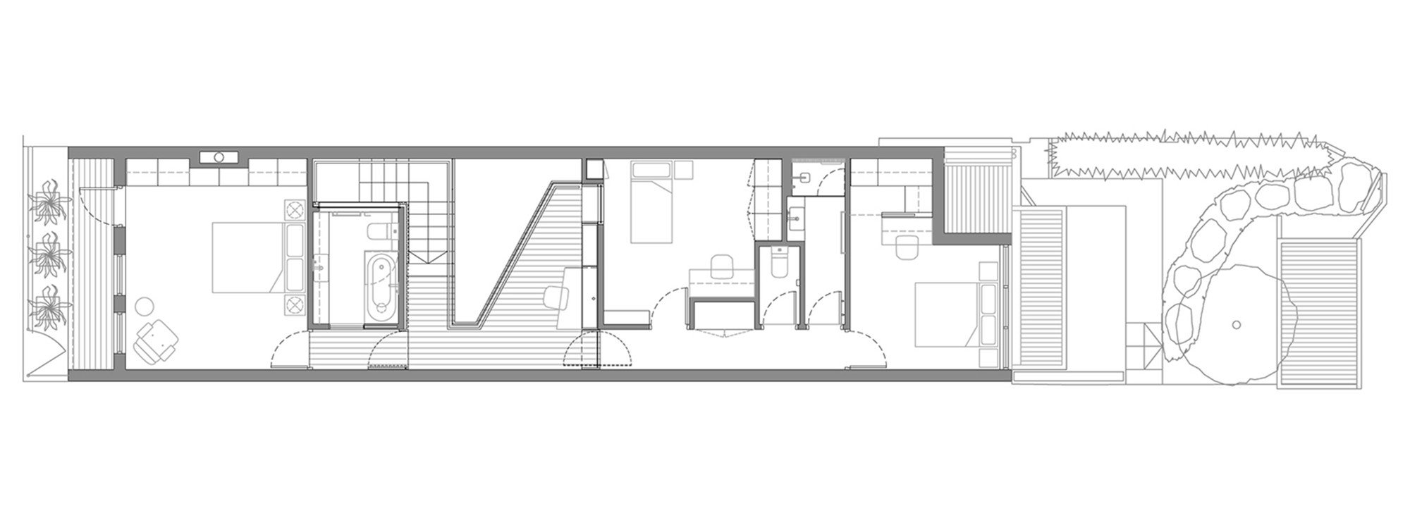
Designed by Mitsuori Architects, this modern home in South Melbourne, Australia is the result of a successful refurbishment that was focused on a double-story terrace house. The project included opening up the ground floor and enclosing an existing courtyard in order to create a multi-zoned family area.

This family space comprises the dining room and kitchen as well as a tranquil sitting room and a lounge. The owners wanted to be able to spend time together throughout the day, but they also needed private zones that would allow them to read, socialize, relax and study. The core of the house is represented by a sculptural timber staircase and a mezzanine studio, both of which envelop a void space illuminated by a skylight. This “node” links the primary living area to the first floor, which contains a bedroom zone for children, a master bedroom and a studio. The project flaunts 2,260 square feet of living space and looks like a fantastic place to come home to every day.
From the architect:
This refurbishment of an existing double storey terrace house in South Melbourne opens up the entire ground floor and encloses an existing courtyard to create a communal multi- zoned family space that incorporates a lounge, quiet sitting room, and dining/kitchen areas. The family’s values of living and working together in shared spaces underpin this architectural design solution.
Our client requested that the design focus on the creation of interesting internal spaces that would allow the family to enjoy time together whilst also providing separate zones for studying, reading, socialising and relaxing. A sculptural timber stair and mezzanine studio wraps around a sky lit void and acts as a central ‘node’ connecting the main living space with a first floor studio, concealed master bedroom and children’s bedroom zone.
The existing concrete floor slab has been ground and polished to expose the dark bluestone aggregate, which is offset against crisp white walls and refined timber and stone joinery elements to create a light, serene space with a natural, relaxed feel.
- Location: South Melbourne VIC 3205, Australia
- Architect in Charge: Matthew Murfett, Melissa Lim
- Area: 210.0 sqm
- Photographs: Michael Kai Photography
- Builder: Howroyd Homes Pty Ltd
- Structural Engineer: Perret Simpson Stantin Consulting Engineers
- Landscape Designer: Ben Scott Garden Design
- Land Surveyor: Calvin F. Raven
- Building Surveyor: Reddo
- Cost Consultant: Stephen J. Pitney & Associates













More Similar Articles Like This
Stunning Sustainable Home in Costa Rica by SPG Architects
Different Types Of Foundations For Summer Houses and Garden Buildings
Best paint colors for the living room
Unique Click Clack Hotel In Bogota, Colombia
Plain Geometric Residence Designed by Lidija Dragisic
Gayton Road Residence by Paxton Locher Studio
Green Gables Home In Fairfield, Connecticut, United States
Heavenly Lily Beach Resort & Spa In Huvahendhoo, Maldives