Built using locally sourced materials as well as recycled railroad ties, El Mirador is a spacious and comfortable home that can be found in Mexico. It was designed by CC Arquitectos and boasts a structure made out of wooden beams and steel, and its retaining walls were put together using local stones.
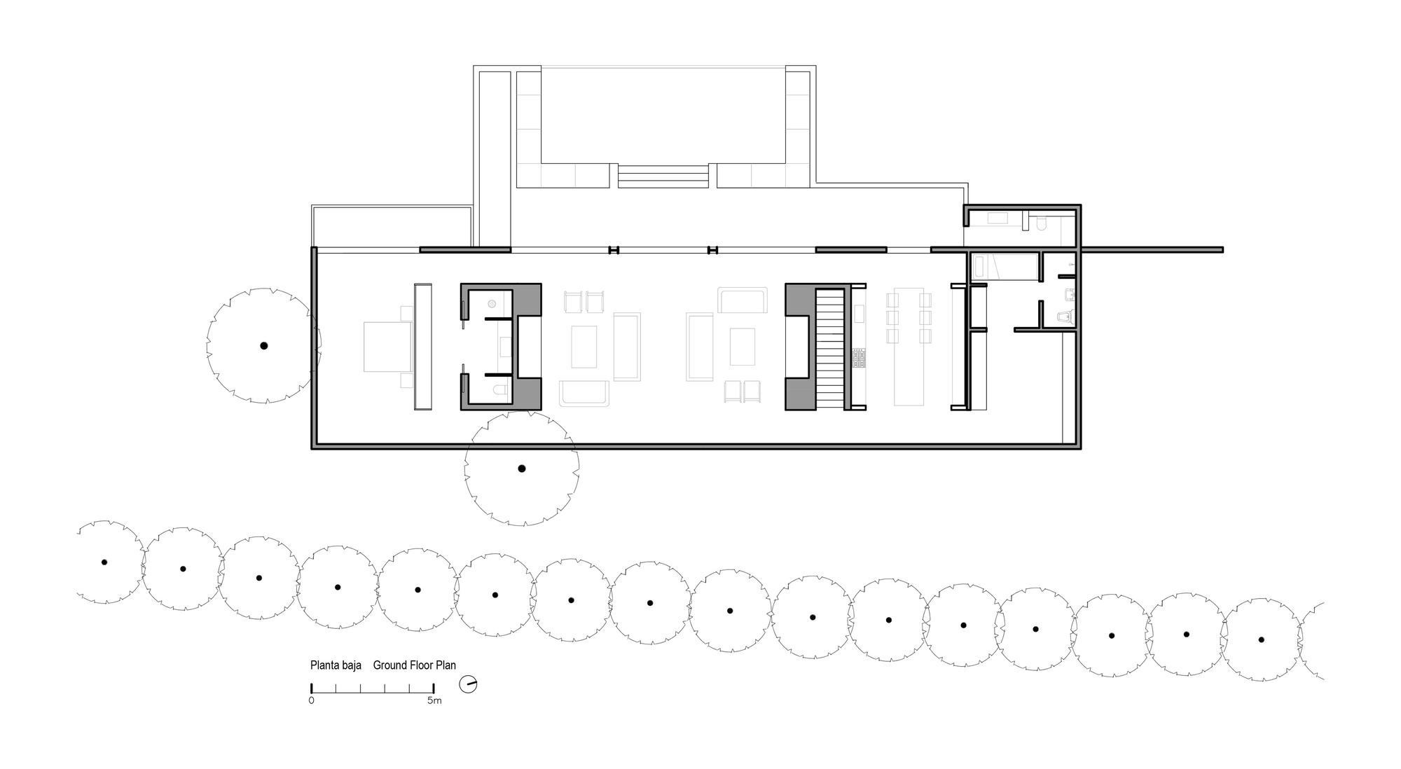
The main living area is represented by a family room that is linked to the primary outdoor terrace. The kitchen features high quality appliances and includes a large central island as well as a slate countertop. As far as the main entryway is concerned, it shares a space with a body of water that was placed parallel with an area dedicated to horse feeding and watering.
Accommodations comprise just a single bedroom with a bathroom, both of which flaunt high quality furnishings and finishes. The bedroom has a large bed and is linked to a decent-sized balcony with glass railings, from which the owner can admire superb panoramas of the outdoors.
From the architect:
El Mirador serves its purpose as it is located on an edge of the site, where the emblematic lake of the area can be seen from above. It was designed based on respecting the forest where it is located, anchored to its topography and reducing its constructive impact. The materials used are from the region, and railroad ties from old train tracks where recycled for the exterior cladding.
The structure is a combined system of steel and wood, and retaining walls are made of local stone. Many of the interior walls are clad in white oak that adds a touch of warmth to the spaces while remaining contemporary.
The program consists of a large family room that connects to the outside expanding the social area to the front terrace. It has a bedroom and bathroom. The kitchen has a large bar made of slate stone that serves a dining area. The relaxed program and its arrangement in the space reinforce the character of relaxation and intense social life for which it was designed. The main entrance has a large reflecting pool that ends in a trough for horses, while a low wood wall hides the parking area.
El Mirador is half buried on one side in order to protect the living spaces from the cold climate of the valley. The design of the pavilion is articulated around vegetation, views and rustic finishes.
Architects In Charge: Manuel Cervantes Céspedes, José Luis Heredia Álvarez
Design Team : Israel Caballero Campos, Deyanira Yarza Barrón, María Luisa Leal Rosales
Project Area: 459.0 sqm
Project Year: 2013
Photographs: Rafael Gamo
Interior Design: Habitación 116
Landscape Design: Entorno, Taller de paisaje















More Similar Articles Like This
Exceptional Coronado Bay Front Estate in California
Plain Geometric Residence Designed by Lidija Dragisic
Saguaro Palm Springs by Joie de Vivre
Green Gables Home In Fairfield, Connecticut, United States
Amazing Four Seasons Resort Bora Bora
Gorgeous And Spacious Home In Sunset Strip
Stunning Banyan Tree Ungasan Bali in Indonesia
The Sophisticated Casa Villa Flamingo in Spain