Back in 2010, the Kralings Museum in Rotterdam, Netherlands was transformed into a contemporary housing project that includes three luxurious suites. Casa F represents the apartment located at the building’s second story, and it was designed by PEÑA architecture. It boasts 2,077 square feet of interior living space as well as 269 square feet of outdoor space.
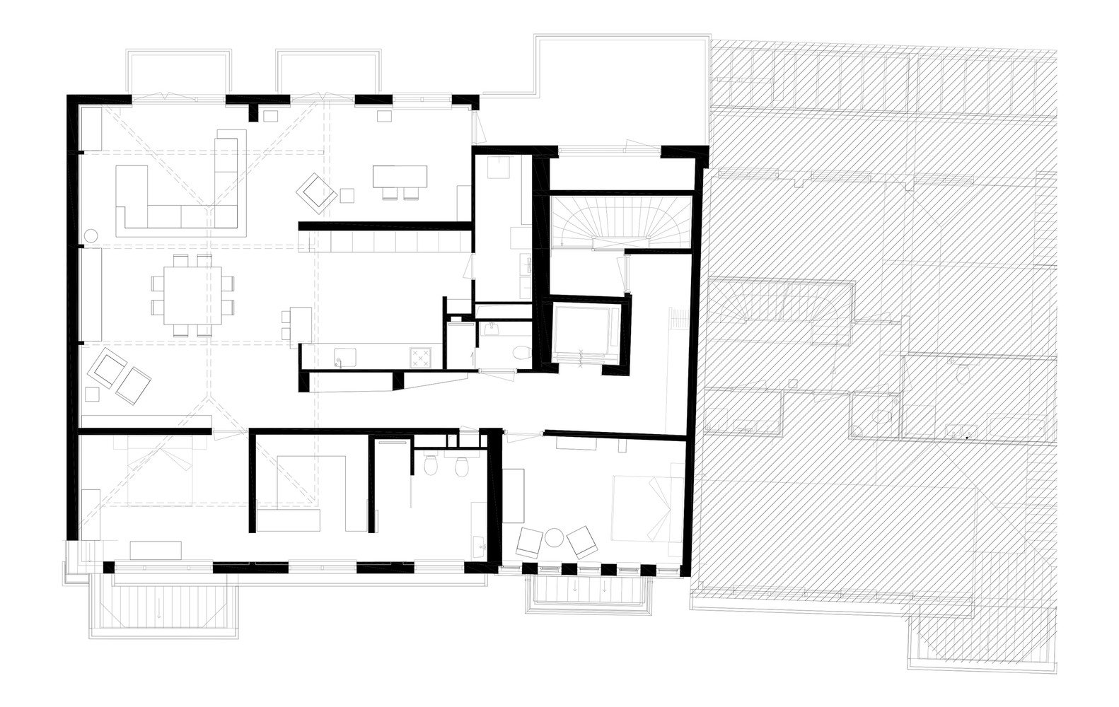
The master bedroom, guest bedroom, guest bathroom and living room can be accessed via a staircase and an elevator. As far as the living room and the master bedroom are concerned, they both feature high ceilings that give off the feeling of extra space. The living room is linked to a new kitchen and a nearby utility room. Thanks to a series of folding doors, the residents can access two small balconies, while the rear of the living room (which acts as a playroom) offers access to a larger single balcony.
When it comes to decorations, we should mention the black and wood touches, as they are the most predominant. Great examples include the oak floor and the black lounge chairs, as well as the black steel stools and the teak elements in the kitchen. The walk-in closets in the master bedroom are also made out of oak.
From the architect:
Transforming a museum into house. In 2010 the former Kralings Museum at the Hoflaan was transformed into a luxury apartment building. The building consists of three apartments with a common entrance and a lift to the upper floors. The project Casa F involves the apartment on the second floor and contains 193 m2 with 25 m2 of outdoor space.
This apartment which was rendered in a “bare bones” condition had to be completely redesigned. The characteristic ceiling and beam structure had to remain as prominent components of the design. The maximum height of the ceiling is 6 meters.
A staircase and an elevator give access to a corridor leading to the living room, the master bedroom, the guest bedroom, guest toilet and guest bath. The spacious living room and the master bedroom lie beneath the beams and the high ceiling. The master bedroom contains a spacious walk-in closet and also an attached bathroom with a shower, toilet and bidet.
The living room is open to a completely new kitchen with an adjoining utility room. At the rear a large area has been added to the living room for use as a “playroom.” Folding doors in the living room give access to two small balconies, and the playroom provides access to a large balcony. All the closets in the bathrooms, kitchen, bedrooms, and the hallway have been designed by the architect who is also responsible for the decoration, furniture and lighting.
The decor involves the color black and wood. This combination appears in many forms. For example, the black classic lounge chairs establish a relationship with the oak floor. Around the square, wooden dining table, eight black chairs are arranged. Two black steel stools complement the teak in the kitchen and the black granite counter tops. All bookcases are made of walnut. The closets in the bedroom, including the walk-in closet, are made of oak. The oak floor has been given a double whitewash treatment to give it a lighter look.
- Location: Rotterdam, Netherlands
- Architect in Charge: Gabriel R. Peña
- Area: 193.0 sqm
- Photographs: Maarten Laupman
- Contractor: STV, Rotterdam
- Advisor installations: Hoffman Elektro BV, Bergambacht
- Furniture made by: Deba meubelen, Belsele, Belgium













More Similar Articles Like This
Exquisite Crossacres Mansion In Surrey, England
Stunning Banyan Tree Ungasan Bali in Indonesia
Opulent Mandarin Oriental Hotel in Paris
Seamlessly Apartment by the Beach by ZZ Architects
Dreamy Oceanfront Chateau In West Vancouver, Canada
Stunning Sustainable Home in Costa Rica by SPG Architects
The Sophisticated Casa Villa Flamingo in Spain
Benjamin Moore Exterior Paint: Vibrant Shades for a Striking Home