The De Wet 24 House located on Bantry Bay, South Africa was designed by Stefan Antoni Olmesdahl Truen Architects (SAOTA) in collaboration with OKHA Interiors.
It is situated on a steep slope overlooking Bantry Bay and is composed of a dynamic play of volumes within a restricted rectangular envelope.
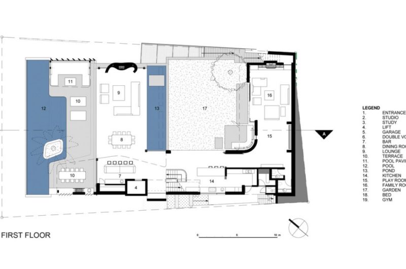
There’s a strong connection between the indoor and the outdoor spaces due to the maximization of the site footprint by the living level.
Interiors: OKHA Interiors

















More Similar Articles Like This
Benjamin Moore Exterior Paint: Vibrant Shades for a Striking Home
6 Garden and Lawn Tips to Get Ready for Spring
Santa Barbara Style Home in Paradise Valley, Phoenix
Vibrant Wood Tones: Explore a Spectrum of Spray Paint Colors!
Spectacular Rooftop Apartment by Innocad
Tips for Choosing the Right Blue Paint Color for Your Dining Room
Opulent Mandarin Oriental Hotel in Paris
Beautiful Apartment in Stockholm for $1 Million