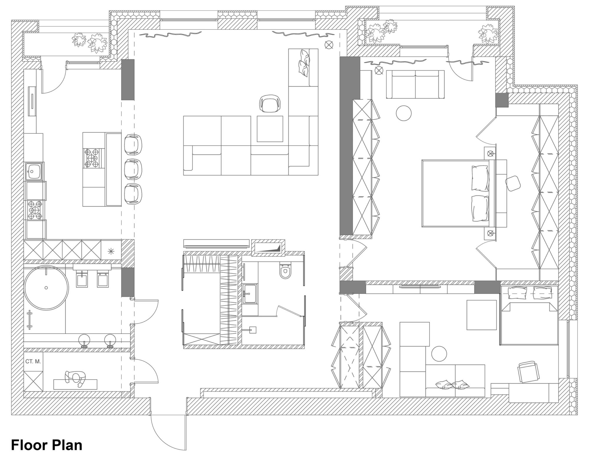
AB1 House is a visualization created by Igor Sirotov Architect, and it represents a modern apartment in Baku, Azerbaijan. Minimalistic and spacious, it features an open plan kitchen, living and dining area as well as a private sitting area that has a comfortable sofa and a flat-screen TV. Its bedroom features a comfortable bed as well as a contemporary fireplace, and it benefits from access to a balcony.
One of the bathrooms flaunts a transparent shower as well as a modern sink and high quality toiletries, while the second bathroom is smaller in scale and includes a bathtub. The renderings depict a perfect home for a single owner, a home that comprises a plethora of entertainment-orientated facilities complemented by comfortable furnishings and minimalistic decorations.













More Similar Articles Like This
Loving Luxury at Mardan Palace Resort, Turkey
Beautiful Apartment in Stockholm for $1 Million
Beach House CN – A Superb Contemporary Home in Peru
Pure Perfection: Discover the Top White Paint Colors for a Flawless Décor
Shadowed Depths: Vintage-inspired Paint Colors for Dark Basements
Different Types Of Foundations For Summer Houses and Garden Buildings
Spectacular Luxury House in Sarasota, Florida by DSDG Inc. Architects
A Superb Italianate Mansion in California, USA