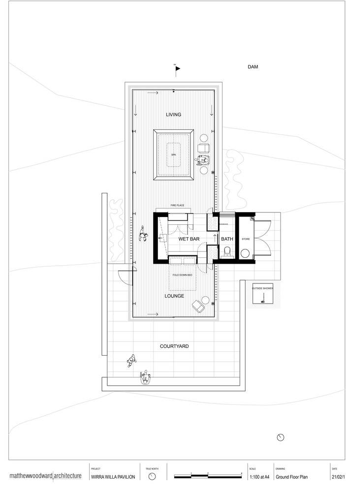
Completed in 2013 by Matthew Woodward Architecture, the Wirra Willa Pavilion is located on a scenic, rural property that covers 80 acres of land. The land was previously used as a citrus fruit orchard, but it now includes mostly gardens that intertwine and form a spectacular display of natural beauty. The pavilion was designed to capture this beauty in order to make sure that the inhabitants could admire it in its entire splendor. It cantilevers over a natural spring fed dam and basically represents a remote spa house and a guest retreat that completes the primary residence on the property.
The pavilion is highly versatile, as it serves different functions depending on the season. The building is composed of a pair of bisecting rectangular prisms, one of which is made out of a sandstone cladded core, while the other features glass, concrete and composite steel elements.
From the architect:
The Wirra Willa Pavilion is a Miesian inspired glass pavilion situated in a vibrant and fertile, rural landscape setting not dissimilar to that portrayed in a Claude Monet painting.
The aim was to create a multifunctional space that provided an experiential opportunityfor the visitor so they could appreciate, to the full extent, the inherent beauty of the landscape. The specific site is situated remotely on a private property that totals 80 acres and was originally established as a stone and citrus fruit orchard. There are well established gardens intertwined throughout.
The pavilion cantilevers over the natural spring fed dam to connect the inhabitant to a sublime environment that is pulsing with an abundance of life and natural beauty. It is essentially used as a private and remote spa house and guest retreat that compliments the existing residence on the property.
Simplicity is essential to the success of the project. The approach was to maintain simplicity through each stage of the design process in order to create an elegant, unobtrusive incision into the landscape setting that allows for both prospect and refuge.
The use of the pavilion is multifunctional. The design needed to be flexible and adaptable to accommodate for various uses during the changing seasons through out the year.
Site selection and siting was crucial. The location was selected for it’s remoteness, opportunity for prospect, and orientation to the sun and prevailing winds.
The orientation of the pavilion to the north-east captures the sun and responds to prevailing winds. In the warmer summer months the sliding glass panels can open up to allow for natural cross ventilation by inviting the prevailing breezes, while in the cooler winter, thermal mass of materials conduct heat from the sun to allow for a relatively constant internal climate.
The materiality was selected for the inherent tellurian characteristics to harmonise the building to the natural setting.
The geometry itself is simple. The building is essentially two bisecting rectangular prisms, one created from composite steel, concrete and glass, and the other a sandstone cladded core. The structural solution was derived from a rationalised ‘grid’system. It is a special place that one can escape to find peace and solitude.
Architects: Matthew Woodward Architecture
Location: Somersby NSW, Australia
Project Team: Matthew Woodward, Benjamin White
Project Year: 2013
Photographs: Murray Fredericks
Manufacturers: Big River Group, Brightgreen, Cultured Stone, FRANKE, Gosford Quarries, Grohe, Heat & Glo, Lumascape, Midcoast Timber, Tiltaway Beds, Villeroy & Boch, Viridian, Vola
Builder: Glenn Cochran – Cochran Constructions
Structural Engineer: Halcrow & Associates
Landscape Consultant: Michael Cooke Garden Design
Land Surveyor: Stephen Thorne & Associates
Environmental Engineer: Barker Harle Consulting Engineers
Bushfire Services: Travers Bushfire & Ecology
Interior Furnishing: Simple Studio
Lighting: Eco Lighting
Project Size: 72m2 Internal + 36m2 External Courtyard













More Similar Articles Like This
Astonishing El Tovar by the Sea
Opulent Mandarin Oriental Hotel in Paris
Beautiful Apartment in Stockholm for $1 Million
Pure Perfection: Discover the Top White Paint Colors for a Flawless Décor
Shadowed Depths: Vintage-inspired Paint Colors for Dark Basements
The JKC1 House in Bukit Timah, Singapore
Different Types Of Foundations For Summer Houses and Garden Buildings
Vibrant Wood Tones: Explore a Spectrum of Spray Paint Colors!