The LM Guest House is a spacious and airy estate due to the all-glass façade that also magnifies the open feel of the living areas. It is located in Dutchess Country, New York and was designed by Desai/Chia Architecture.
This home is equipped with the latest technology for personal comfort such as geothermal heating and cooling, radiant floors, motorized solar shading, photovoltaic panels and rainwater harvesting.
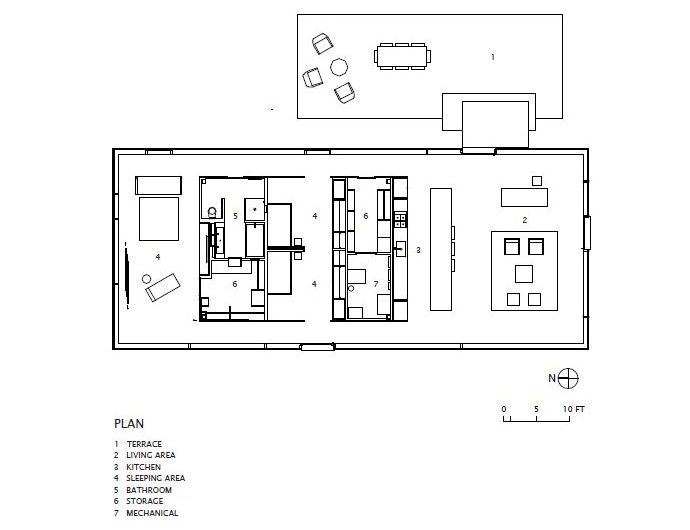
A slatted wood core is the main element that covers the mechanical, storage and bathing spaces and around which the open living and the sleeping areas are organized. Two sleeping couchettes include additional accommodations for the weekend guests. The warmth and the comfort in the house are also provided by the natural white oak wood detailing.
Photos by Paul Warchol















More Similar Articles Like This
How Seattle Lawn Care Service Deals With Overgrown Lawns
Green Gables Home In Fairfield, Connecticut, United States
Lovelli Residence: Mediterranean-Style Dwelling in Bali
10 Different Types of Blue Paint Colors
Tips for Choosing the Right Blue Paint Color for Your Dining Room
These Top Tips Will Help You to Turn Your Garden into the Ultimate Glamping Site!
Behr’s Brilliant Blues: 70 Shades of Stunning Paint Colors
Vibrant Wood Tones: Explore a Spectrum of Spray Paint Colors!