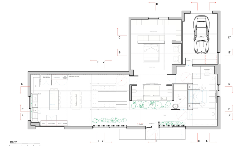
Transforming a commercial space into a comfortable and welcoming loft is a very bold project, but the expert architects at Egue y Seta managed to complete it with flying colors, and now, this abode stands ready to provide exceptional living conditions for its fortunate owner. Finished in 2013, the loft flaunts 1,937 square feet of living space, and it can be found in Terrassa, Barcelona, Spain. The architects that were in charge of this amazing project are named Felipe Araujo and Daniel Pérez, and they both did a truly fantastic job in making this place a reality.
Flaunting a deep connection to nature and its pure beauty, the loft is home to a plethora of natural plants. The living room is spacious and includes a splendid collection of velvet cushions that form a comfortable sofa. The dining area as well as the kitchen can be found just a few steps away from the living room, and they also ensure great opportunities for socialization and relaxation. The dining area, for example, flaunts a gorgeous Bedrock Plank A that was created by an Italian firm named Riba 1920. A selection of high quality Eames chairs and a modern lighting arrangement based on bundles of light bulbs give off a sense of warmth and calm.
The master bedroom is definitely comfortable, and it boasts a superb mix of rustic and contemporary elements. The modern bed is large and welcoming, while the nearby leather sofa features a timeless classic design. Above the sofa, 2 stuffed fabric reindeer head trophies provide a somewhat unusual yet appealing decorative touch.
Photos by Victor Hugo
























More Similar Articles Like This
70 Shades of Green: Benjamin Moore’s Vibrant Paint Colors
Stunning Sustainable Home in Costa Rica by SPG Architects
Seamlessly Apartment by the Beach by ZZ Architects
Amazing Four Seasons Resort Bora Bora
Gayton Road Residence by Paxton Locher Studio
Benjamin Moore Exterior Paint: Vibrant Shades for a Striking Home
Heavenly Lily Beach Resort & Spa In Huvahendhoo, Maldives
Vibrant Concrete Floor Paint Colors to Elevate Your Space