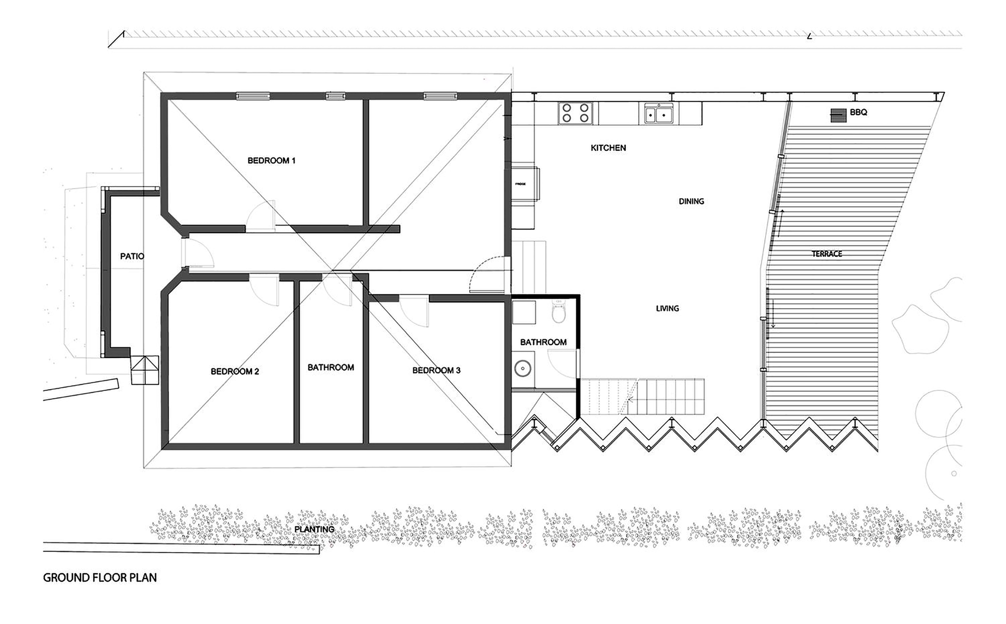
Designed by a team of architects from Enter Projects, the Dalmeri represents a contemporary addition to an older, federation period style abode. The residence can be found in Sydney NSW, Australia, and it was completed with utmost efficiency in just a few months, which just goes to show that a comfortable home does not require years of planning and construction in order to become a reality.
Built using natural materials exclusively, the home was inspired in its design by classic Australian shacks, and it features an exterior made out of corrugated iron. The main entry façade impresses with great transparency that was achieved with the help of multiple glass windows. Amenities include kitchen island, ambient cove lighting and ambient music, while the furniture pieces are modern, vibrantly colored and comfortable.
The residence was put together using a selection of corrugated metal bands that blend in order to form an “accordion”-inspired layout. Even though it is just 22 feet tall and 31 feet wide, the Dalmeri appears spacious and welcoming, and it definitely represents a fresh, contemporary addition to an otherwise classic and sober neighborhood.
Photos by Brett Boardman














More Similar Articles Like This
Exquisite Crossacres Mansion In Surrey, England
Contemporary BO House In Envigado, Antioquia, Colombia
Vibrant Wood Tones: Explore a Spectrum of Spray Paint Colors!
Opulent Mandarin Oriental Hotel in Paris
Pure Perfection: Discover the Top White Paint Colors for a Flawless Décor
Dreamy Oceanfront Chateau In West Vancouver, Canada
Gayton Road Residence by Paxton Locher Studio
Different Types Of Foundations For Summer Houses and Garden Buildings