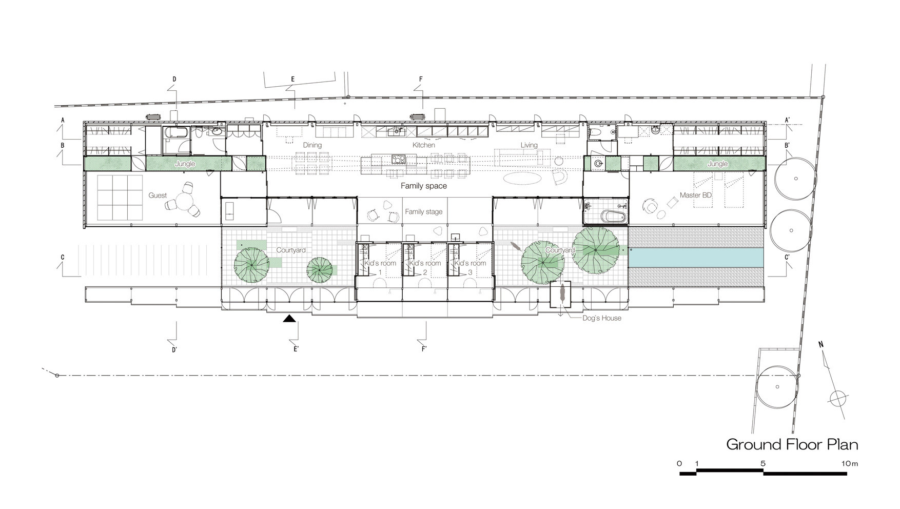
Large enough to accommodate a large family that comprises parents, three daughters and two dogs, this stylish and minimalistic home is located in Hyogo Prefecture, Japan, and it was designed by Osamu Morishita Architect & Associates. Completed in 2014, the abode features 3,143 square feet of space and ensures private living conditions for all family members, especially when it comes to the three daughters. They get to live within a special space at the core of the house, which is linked to the family areas while offering utmost privacy and comfort.
This area receives natural illumination from the sky above through a series of skylights and louvers. In front of their rooms, there is a so-called “Family Stage”, which allows the sisters to play their violins and perform on actual stages.
As far as the dogs are concerned, they received their own living quarters, which makes sense since they are regarded as family members. The pet space was designed to cater to their needs, whether we’re talking about shelter or playing opportunities. Multiple windows and glass walls allow natural light to enter the house without obstructions while ensuring that the residents are able to enjoy great views of the outdoors.
From the architect:
The project brief was to design a single family house for a family (parents, 3 daughters and 2 dogs) to enjoy spending time together and also appreciate each daughter’s personal space to feel outdoor experience likes a scout campsite. Spaces for 3 daughters are the main idea for this house as an independent space, dwelling unit at the center of house, connected to family space, toward a conceptual idea of “House in House” or interpenetration space which interact with family space. The kid’s room is separated 3 independent living units but able to access by sliding screen panels to build their strong relationships with their sisters. This room is direct to the sky above. Skylight with aluminum louvered roof infuses the bedroom space with a sense of comfortable. Because the skylight and louvers diffused indirect light into the room so they can feel refreshed in the mornings. The place in front of their room is a common space that called ‘the Family Stage’ , a part of family space where daughters play violins like on actual stages and entertain for a family as the musician and the audience in holidays.
They’re not the dogs, they’re family”. Coming up with this idea, we designed a dog space. The pet space is all about the joy and challenges for their dog’s happiness and well-being are important to them and their care and living spaces play a big role in providing them with a secure and loving house that located outdoor area, but connected to the house.
Considering a project that optimizes bioclimatic/passive resources and the definition of the Jungle is relations with the nearby surrounding of green area. Feeling of nature from inside the house is transparency but in addition, they can feel safety because of the exterior wooden louvers screens creating boundary of courtyards. Living with nature, great combination of interior space separated with small green area-strip inside. The breathtaking combination of this indoor green area is an amusing mixture of inspirations between interior space and nature in conjunction with passive cooling.
In parallel, the need of sustainability is marked as one of the strengths of the project. Making indoor environment comfortable, consisting of air ventilation between lower louvers and upper window. Air replacement behavior of cool air from lower louvers will flow through the room to green space and will exhausted through the opening window on the top. Switching the door panel to shut out from green space will change the function to corridor. Therefore, family members in the house, not only can feel comfortable, but also live touched, communicate with each other and sharing the moment together. Echoing the concept, the house is responding sensitively to the site with an identity, with its own personality and according to the place it belongs.
- Architects: Osamu Morishita Architect & Associates
- Location: Hyogo Prefecture, Japan
- Construction: Karatani Corporation
- Area: 292.0 sqm
- Project Year: 2014
- Photographs: Hahakura Photo Office












More Similar Articles Like This
Beach House CN – A Superb Contemporary Home in Peru
Stunning Sustainable Home in Costa Rica by SPG Architects
Stunning Banyan Tree Ungasan Bali in Indonesia
Tips for Choosing the Right Blue Paint Color for Your Dining Room
10 Different Types of Blue Paint Colors
Outstanding Bodrum Houses in Yalikavak, Turkey
Gorgeous And Spacious Home In Sunset Strip
Saguaro Palm Springs by Joie de Vivre