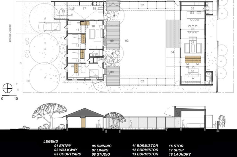
The Cedar Street Residence was redesigned by the coLAB Studio in order to fit the needs of a modern family. It is located in Tempe, Arizona, USA and is a perfectly functional house.
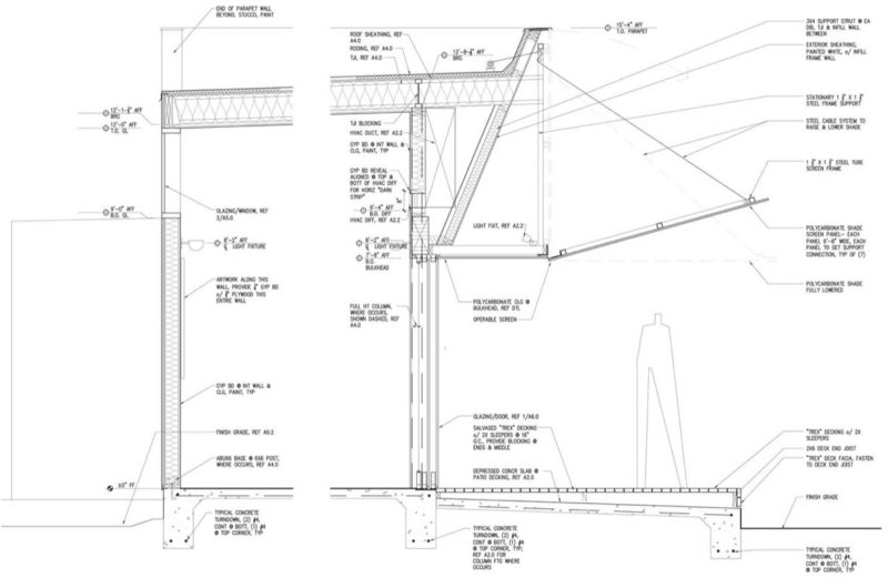
The south façade features a brise soleil that permits the residence to be transformed according to the owner’s daily activities, also acting like a giant lantern for the courtyard at night and reduces heat gain each day.
The entire courtyard is surrounded by a translucent, reflective glass, offering privacy and separation from neighbors.
Photos by Bill Timmerman


















More Similar Articles Like This
Gayton Road Residence by Paxton Locher Studio
Benjamin Moore Exterior Paint: Vibrant Shades for a Striking Home
Astonishing El Tovar by the Sea
The JKC1 House in Bukit Timah, Singapore
Saguaro Palm Springs by Joie de Vivre
Tips for Choosing the Right Blue Paint Color for Your Dining Room
These Top Tips Will Help You to Turn Your Garden into the Ultimate Glamping Site!
Lovelli Residence: Mediterranean-Style Dwelling in Bali