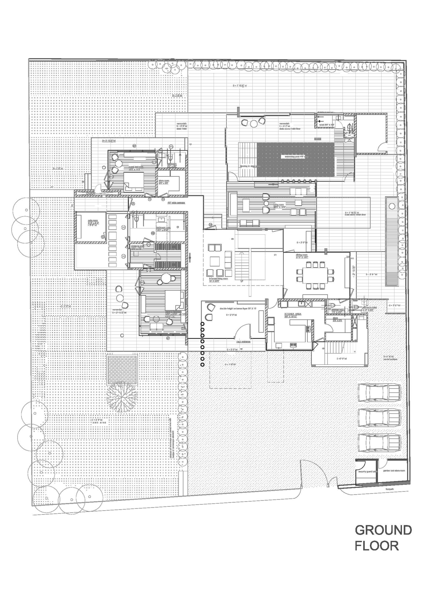
The Poona House was completed in 2008 by Rajiv Saini. It is located in Mumbai, India and was designed as the owner wished. The lounge offers direct visual access of the entire house, the rooms are arranged around the central core, the separation between the entrance lobby and the lounge being made by a suspended double height screen in slatted wood.
The residence nestles within a verdant green area, offering the owners privacy and tranquility. All the public spaces are situated on the ground level, while the private ones are on the upper level. The blurring of the boundaries between the outdoor and indoor space is faded by glass enclosures along the walls on the lower floor.
The indoor pool is situated just underneath the daughter’s bedroom. Smooth and rough were mixed nicely in order to create a safe, secure and pleasant environment.


























More Similar Articles Like This
Vibrant Wood Tones: Explore a Spectrum of Spray Paint Colors!
Superb Luxury Penthouse in Portomaso, Malta
Loving Luxury at Mardan Palace Resort, Turkey
Shadowed Depths: Vintage-inspired Paint Colors for Dark Basements
5 Ways to Turn Your Yard Into a Fancy Space
Exploring the New World of Luxury Hoteling
Wonderful Yachting Club Villas at Elounda Beach by Davide Macullo Architects
Stunning Sustainable Home in Costa Rica by SPG Architects