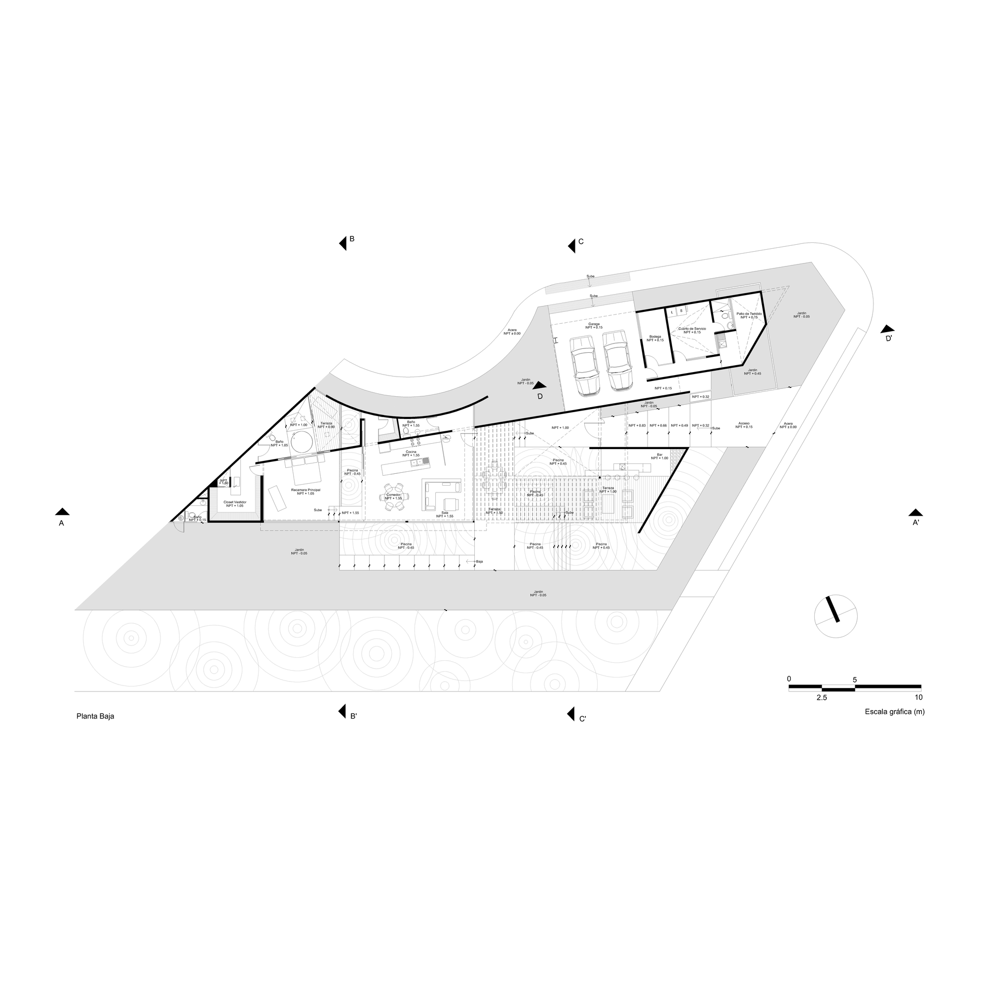
The PL2 House is a fantastic project that oozes modernism and elegance from each and every pore. Designed by Seijo Peon Arquitectos y Asociados, this stunning abode is located in Yucatan, Mexico and features 3,767 square feet of living space, which is definitely quite enough for a residence that was meant to accommodate a single owner.
Built in 2013 on a privileged location, the abode overlooks a tranquil lake and is surrounded by small palm trees and other forms of natural vegetation that can be admired in full while relaxing on the patios and lounging areas found just outside of the home itself. Accommodations include a single bedroom as well as a separate living room and a dining room, but we should also mention the fully equipped kitchen and the various social areas, which promise to ensure fantastic opportunities for relaxation and leisure.
Featuring exceptional views of the lake, the residence is orientated towards the southwest and so it had to be protected from the Sun in order to avoid overheating. This is why the architects decided to implement a large wall, which ensures much needed shade as well as privacy.
Photos by Tamara Uribe





















More Similar Articles Like This
The JKC1 House in Bukit Timah, Singapore
How Seattle Lawn Care Service Deals With Overgrown Lawns
Lawn Care Tips, The Basics For Each SeasonÂ
Beautiful Apartment in Stockholm for $1 Million
10 Different Types of Blue Paint Colors
5 Ways to Turn Your Yard Into a Fancy Space
Loving Luxury at Mardan Palace Resort, Turkey
The Superb Maradiva Villas Resort & Spa in Mauritius