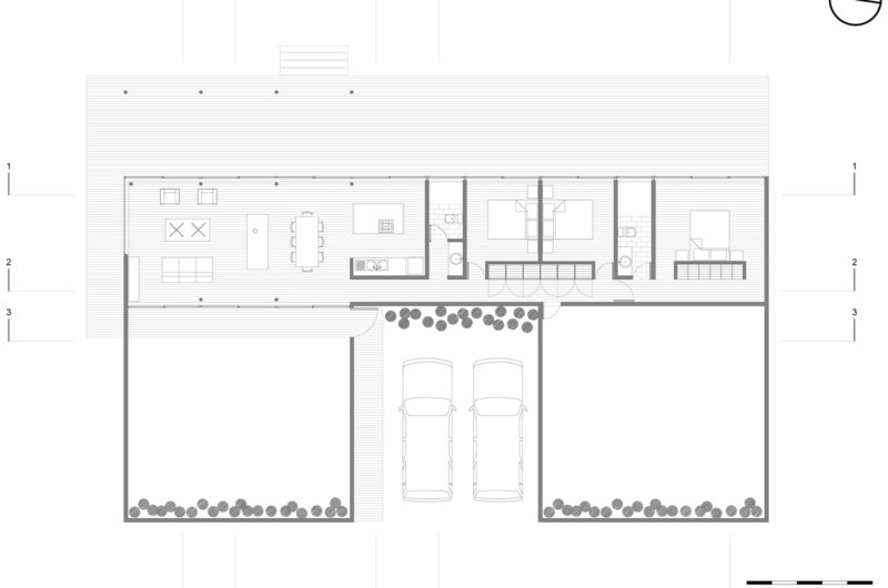
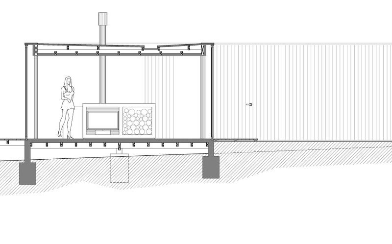
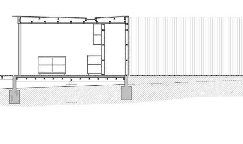
House W is an incredible minimalist residence in Huentelauquen, Chile. It was designed by architectural firm 01Arq, who wanted to keep the residence protected from the elements, but also very open and connected with the surroundings. The one-story house flaunts stunning views of the nearby ocean.
Photos by Aryeh Kornfeld and Mauricio Fuertes









































More Similar Articles Like This
Beautiful Apartment in Stockholm for $1 Million
70 Shades of Green: Benjamin Moore’s Vibrant Paint Colors
Astonishing El Tovar by the Sea
Tips for Choosing the Right Blue Paint Color for Your Dining Room
Superb Luxury Penthouse in Portomaso, Malta
Seamlessly Apartment by the Beach by ZZ Architects
Secluded Naladhu Island in Maldives
Santa Barbara Style Home in Paradise Valley, Phoenix