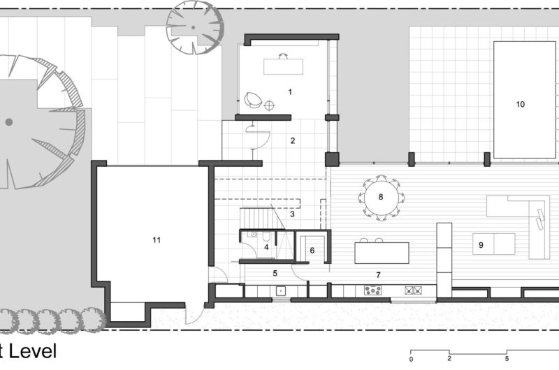
This family home situated in Kew, Melbourne – Australia, is the work of architect Taylor + Reynolds. It is a generously spaced block house that had to be designed to soften the concrete block work.
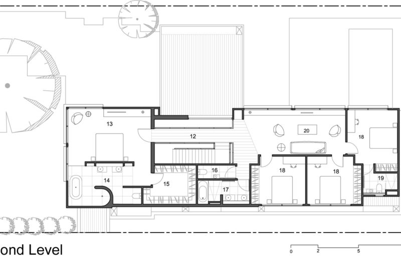
To do so, the designer chose to use contrasts in light and shadow, solid and void and color and texture. Concrete, although might seem a raw material, has been put into light so that it creates a dynamic environment and living space. The elements of the house’s architecture, like staircases, become sculptural and open up the scenery. The bridge is here seen like an extension from the stairs and is used to create openness, but also intimacy, since it connects the master bedroom with the children rooms.
The exterior of the house is impressive because of its shape. The first rectilinear floor is set upon a block of concrete, as might appear to the ones passing by. Timber has many uses in this unique design and windows are smartly used to create the connection with the exterior.
Openness is the result of another brilliant touch of the architects. They gave the living area the impression that it extends outside, including the pool and garden in the view from inside.





















More Similar Articles Like This
Vibrant Wood Tones: Explore a Spectrum of Spray Paint Colors!
Gorgeous And Spacious Home In Sunset Strip
Superb Luxury Penthouse in Portomaso, Malta
How Seattle Lawn Care Service Deals With Overgrown Lawns
5 Ways to Turn Your Yard Into a Fancy Space
Pure Perfection: Discover the Top White Paint Colors for a Flawless Décor
Spectacular Luxury House in Sarasota, Florida by DSDG Inc. Architects
Contemporary BO House In Envigado, Antioquia, Colombia