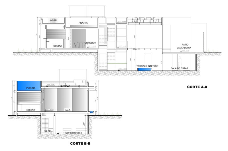
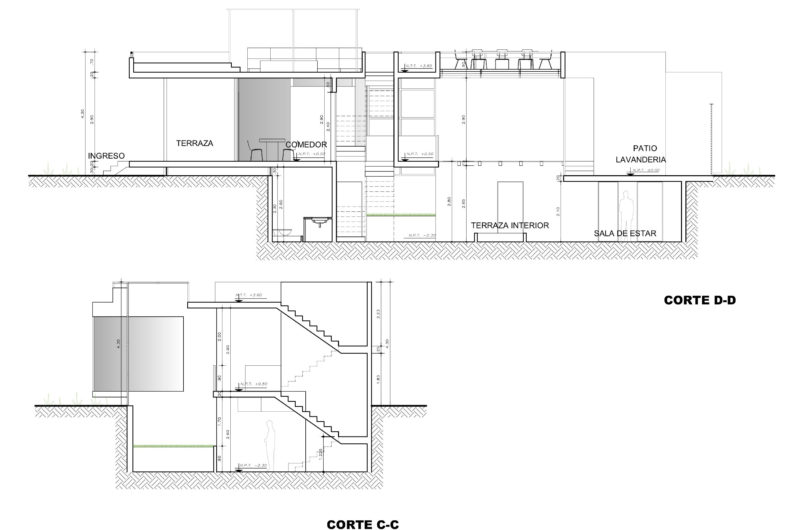
Casa V2 is a remarkable project of Gomez de la Torre $ Guerrero Arquitectos, a Peruvian architecture studio. It is a lovely contemporary residence with 3,032 square feet of living spaces, all very nicely fitted in a minimalist style. You can find it in Playa Las Gaviotas, CaƱete, Peru.
Contemporary Casa V2 in Playa Las Gaviotas, Peru
Darcie George
I'm Darcie George, a writer who explores home paint. My stories are about making homes look great with colours. Let's learn how to choose paints and create cozy, beautiful spaces together. Join me in discovering the magic of home painting!






















More Similar Articles Like This
Benjamin Moore Exterior Paint: Vibrant Shades for a Striking Home
Beach House CN ā A Superb Contemporary Home in Peru
A Superb Italianate Mansion in California, USA
Loving Luxury at Mardan Palace Resort, Turkey
Lawn Care Tips, The Basics For Each SeasonĀ
Plain Geometric Residence Designed by Lidija Dragisic
Beautiful Apartment in Stockholm for $1 Million
The JKC1 House in Bukit Timah, Singapore