Caroline Street Aberfeldie is one of those modern homes that ooze elegance and fine taste while featuring a high degree of practicality. This house was not only designed to look good; it was envisioned as a comfortable haven of relaxation that would allow its owners to enjoy the finer things in life day after day. It was completed in 2014 by a company named Architecton, and it is located in Essendon, Australia. It flaunts 4,520 square feet of living space, and it benefits from a tight link to the outdoors thanks to its large windows that welcome natural light throughout its living areas while offering generous views of the outdoors.
The interior design is modern and elegant. It is based on black and white elements that contrast nicely with each other and contribute to a welcoming ambiance. The link between the indoors and outdoors is further strengthened by sliding glass doors that provide access to a deck and its cozy relaxation area. Simple yet luxurious, the Caroline Street Aberfeldie home is a perfect example of contemporary architecture.
From the architect:
The clients’ ambition and aspirations for the property is for the creation of two high quality contemporary residencies, which boast a unique and sophisticated architectural design style. Whilst the design must generate dwellings with drama and excitement through the use of scale, volume, elegant materials and clever design, the dwellings must be practical and functional with a sense of warmth and comfort.
The design responds and takes advantage of the north aspect of the site, in order to create an integrated and exciting relationship between the indoor and outdoor living spaces. This seamless connection is further exemplified with clever use of landscaping.
Whilst the vision is to create a well-designed and considered medium density residential development, which maximizes the potential of the site, the project remains sensitive to the existing streetscape and character of the surrounding area.
Architects: Architecton
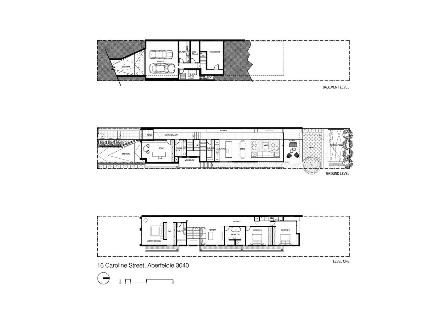
Location: Essendon, Essendon VIC 3040, Australia
Area: 420.0 sqm
Project Year: 2014
Photographs: Axiom
Lead Designer: Nick Lukas
Glowing Structures: lighting design












More Similar Articles Like This
Outstanding Bodrum Houses in Yalikavak, Turkey
Vibrant Concrete Floor Paint Colors to Elevate Your Space
Lawn Care Tips, The Basics For Each SeasonÂ
Amazing Four Seasons Resort Bora Bora
These Top Tips Will Help You to Turn Your Garden into the Ultimate Glamping Site!
Spectacular Rooftop Apartment by Innocad
Seamlessly Apartment by the Beach by ZZ Architects
Secluded Naladhu Island in Maldives