This masterpiece by Bruce Stafford Architects can be found in Sydney, Australia, and it represents the result of an extensive renovation project. The project team for this amazing transformation consisted of Rachel Kayode, Bruce Stafford and Anna Antoniades, and they all did an exceptional job in designing and shaping this place into reality.
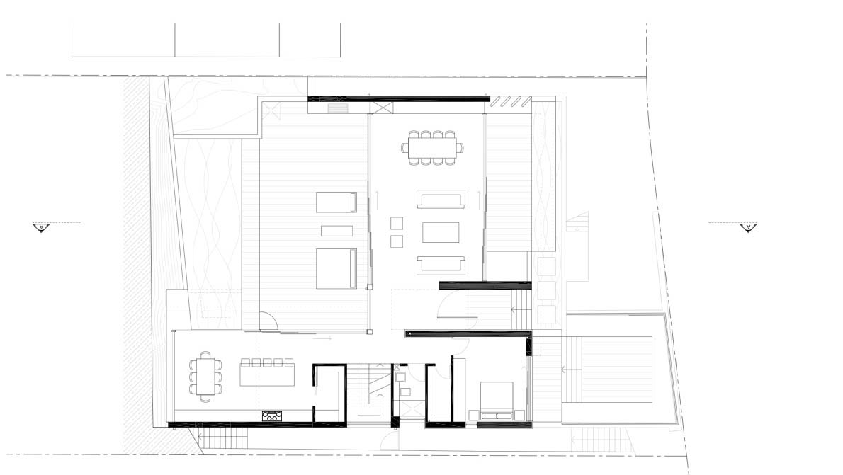
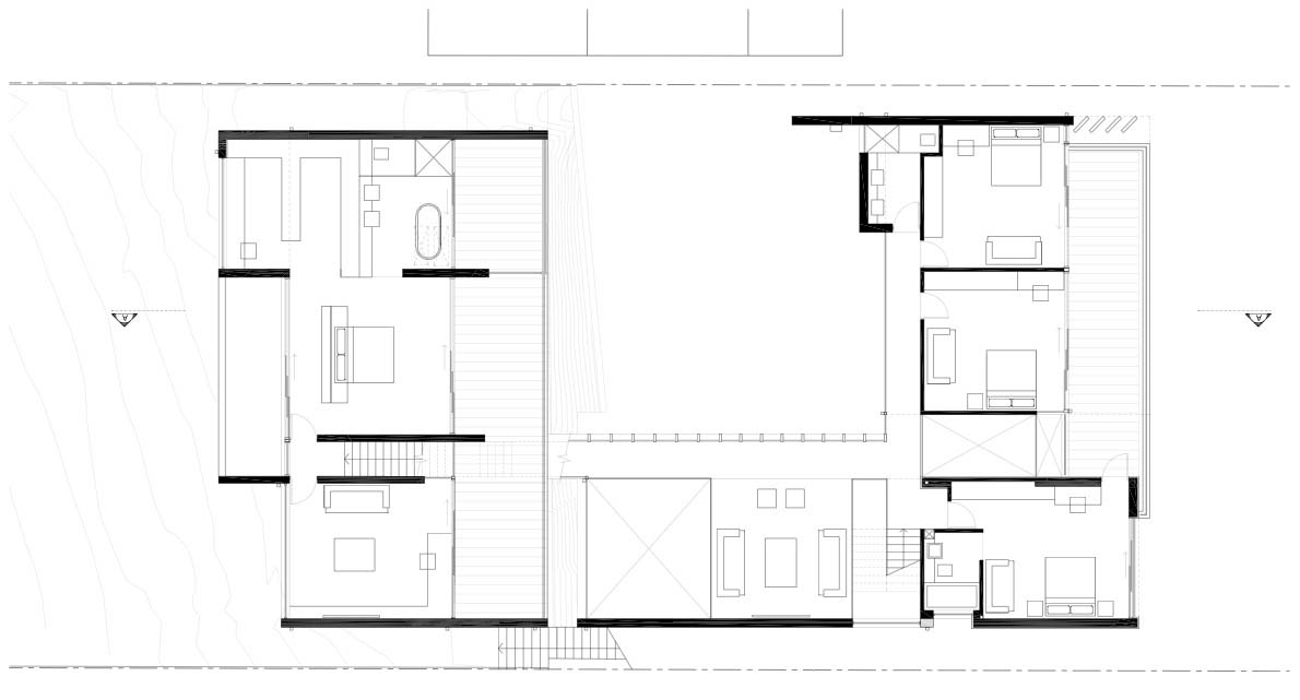
One of the main highlights of the abode comes in the form of an internal courtyard that boasts plenty of natural vegetation. The indoor and outdoor areas are connected efficiently with the help of large sliding glass doors that can be closed or opened according to the owner’s own needs and preferences. All living areas benefit from staggering views of the encircling environment but the master suite is definitely the most privileged thanks to its elevated positioning on the rock face.
The parents are able to relax and enjoy their privacy within the master suite while still being able to observe what happens in the main living areas. Comfortable furnishings, large dining tables and impressive lighting arrangements are just some of the other highlights of the K3 House.
















More Similar Articles Like This
These Top Tips Will Help You to Turn Your Garden into the Ultimate Glamping Site!
Santa Barbara Style Home in Paradise Valley, Phoenix
Astonishing El Tovar by the Sea
Exceptional Coronado Bay Front Estate in California
Spectacular Rooftop Apartment by Innocad
Outstanding Bodrum Houses in Yalikavak, Turkey
Beach House CN – A Superb Contemporary Home in Peru
Plain Geometric Residence Designed by Lidija Dragisic