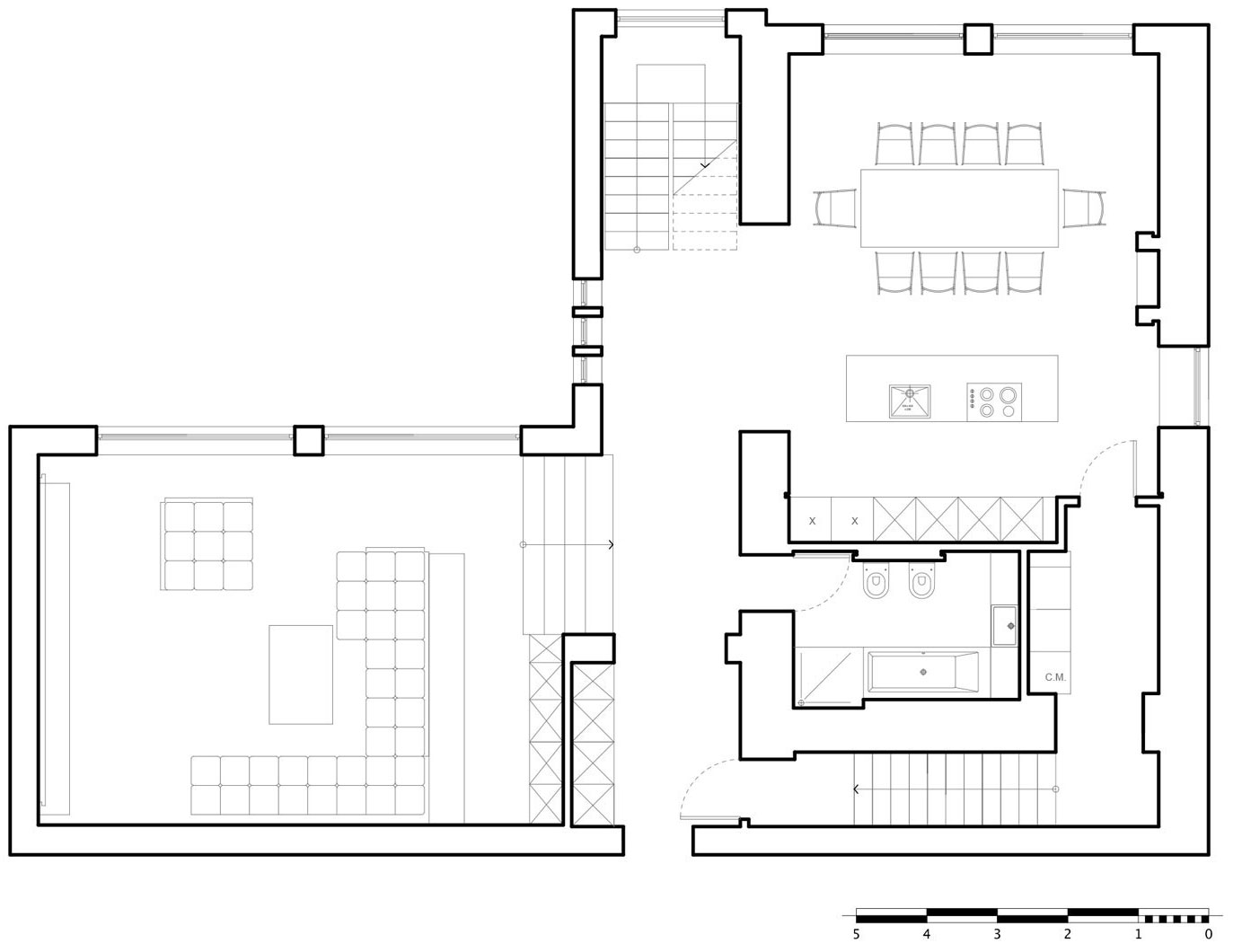
Two Levels – a name that says it all. This modern home in Dnipropetrovsk, Ukraine is the result of an extensive renovation and expansion process that was carried out by NOTT Design Studio. The main changes include the addition of a new volume and a brand new second floor. The layout flaunts an elongated hallway that provides ground level access to a large living room, a kitchen, a dining room and a guest bathroom. The upper level comprises the master bedroom as well as a bathroom, a dressing area, rooms for guests and the children areas.
Access to the second story is achieved via a minimalistic staircase that features wooden steps and transparent tempered glass elements complemented by a metal frame. Natural light plays a key role in creating a warm and welcoming ambiance, and it flows unhindered through the living areas thanks to large windows. Most of the furnishings were created in Ukraine as per the owner’s request. The ceramic pieces were made entirely by hand by Sergey Gorban.
From the architect:
The large modern house on the shore of the storage pond was a small summer cottage where family spent the summer. The customer applied to NOTT Design Studio when the process had been already in the height of transformation – a new much bigger part with the second floor was being added to an old little house. So that architects have introduced adjustments during the process of construction.
According to the new layout a long hall has become the center of the house where space is opened dynamically toward: the left and downstairs – to an attached large living room, the right – to the kitchen-dining room, which together with the guest bathroom took existing structure, and upstairs -to the second floor on a minimalist wooden staircase with transparent tempered glass, encased in a metal frame. The second floor is completely private area where the master bedroom with the dressing room and the bathroom, children’s and guest rooms are located.
The particular emphasis in the interior has been made on the maximum use of natural light.
The color spectrum is based on the balance of rough surfaces of plaster looks like concrete and warm texture of American walnut, plus white background and black embedding details. Selection of pieces of furniture has been made according customer’s desire to have a quality made in Ukraine furniture and use the least possible number of factory stuff, so all board furniture, complete kitchen, the table, the coffee table, beds are made on the authors’ sketches by local craftsmen. “Hand made” ceramics by Sergey Gorban completes the image of the house.
Photos by Andrey Avdeenko
















More Similar Articles Like This
Saguaro Palm Springs by Joie de Vivre
Exploring the New World of Luxury Hoteling
Unique Click Clack Hotel In Bogota, Colombia
Superb Luxury Penthouse in Portomaso, Malta
Different Types Of Foundations For Summer Houses and Garden Buildings
Contemporary BO House In Envigado, Antioquia, Colombia
Lovelli Residence: Mediterranean-Style Dwelling in Bali
Extraordinary Constance Halaveli Maldives Resort