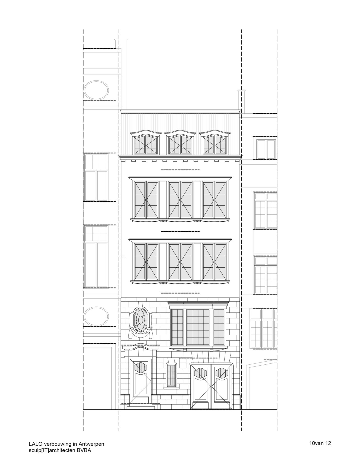
Renovated with modernism and comfort in mind, this old Bourgeois town house has been transformed into a remarkable place to call home courtesy of a successful intervention by Sculp[IT]. Located in Antwerp, Belgium, the project was completed in 2015 and boasts a plethora of contemporary design elements and high quality materials throughout. One of the home’s most impressive aspects comes in the form of a simple, modern glass rear that includes the largest pivoting window in the world, which is 9.8 feet wide and 19.6 feet tall.
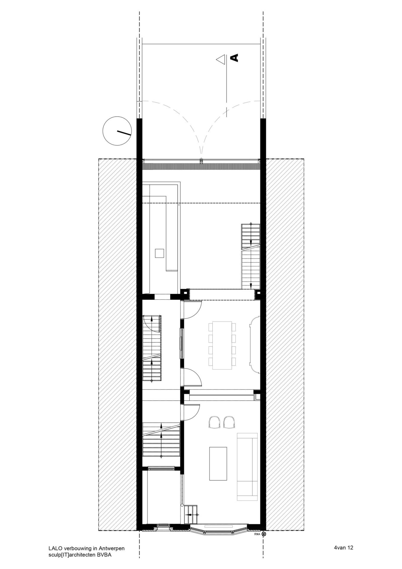
Apart from renovating the original house, the architects also added a brand new extension at the back that comprises a luxurious triplex. The new ground floor includes informal eating and cooking spaces as well as a garage and storage facilities, while the old part of the first floor features a dining and a sitting area, both of which face a wonderful garden. The new part of the first floor is now a suspended office, while the second, third and fourth floors incorporate two large rooms with bathrooms on each floor.
From the architect:
A town house ready for the next century. The façade keeps its historical function and bourgeois radiance, neatly in line. The contrast with the rear is ample. All incorrect additions are replaced by a unit of space and light. Daylight and contact with the garden are introduced. The simple, contemporary glass rear has the world’s largest pivoting window – 3 meters wide by 6 meters high – and makes this house ready for the future.
Renovation old Bourgeois town house.
Bell etage, so no connection on the same level with the garden. Clients wanted to have that connection and a more modern approach in connection with the old details. We broke down the rear part of the building to make this connection on the same level, and give the house a nice view to the garden from the different floors. We wanted to make also a connection with the different floors. This happened wit a triplex in the new built rear extension.
New Groundfloor: kooking and informal eating. (and storage places and garage) First floor: old part: dining and sitting (also with a view to the garden): new part: a suspended office. Second, third and fourth: 2 big rooms with bathroom each floor.
Materials new extension:
Polished concrete inside and the outside terrace on the same level. Walls: masonry with painted. Windowprofiles: ODS Jansen Ixtra lasercut and tailormade with insulated glass from Saint Gobain. (glass 1.5 ton each slab). Each window (with frame) 2 tons. Dimensions: 3x6m and 6x3m above. Concept window: same form: T shaped as an old standard window. Kitchen: table tops also in concrete. The island is movebla to the terrace. The ideal bbq house. In the old front part we renovated the existing floors and architectural details. The new bathrooms are in the old style with modern approach. But we kept the old lavabo’s that were available in the house.
The new bathrooms are in between the two big bedrooms with double doors ‘en enfilade’ (a classical term for doors of different rooms on one view axe). So we didn’t do a lot; but what we did has giant repercussions to the way of living in that house.
Architects: Sculp[IT] Location: Antwerp, Belgium
Architect in Charge: Pieter Peerlings and Silvia Mertens
Project Year: 2015
Photographs: Luc Roymans
Engineer: ODS
Door construction and installation: Lootens Line
Manufacturer: Jansen













More Similar Articles Like This
Plain Geometric Residence Designed by Lidija Dragisic
Opulent Mandarin Oriental Hotel in Paris
Beach House CN – A Superb Contemporary Home in Peru
Saguaro Palm Springs by Joie de Vivre
Pure Perfection: Discover the Top White Paint Colors for a Flawless Décor
The Sophisticated Casa Villa Flamingo in Spain
70 Shades of Green: Benjamin Moore’s Vibrant Paint Colors
Superb Luxury Penthouse in Portomaso, Malta