Agraz Arquitectos are the ones who designed the 5,920-square-foot SJC House, situated in San Juan Cosala, Jalisco, Mexico. This beautiful weekend residence offers magnificent views of the Chapala Lake, being a getaway from the noisy and crowded city.
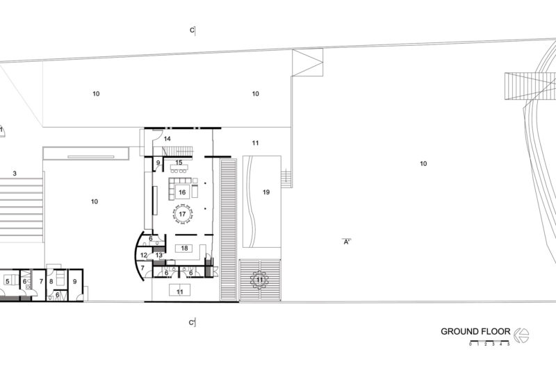
From the beginning the home impresses with its infinity pool and large terrace with sunshade, the perfect place to relax and have a great time with friends and family.
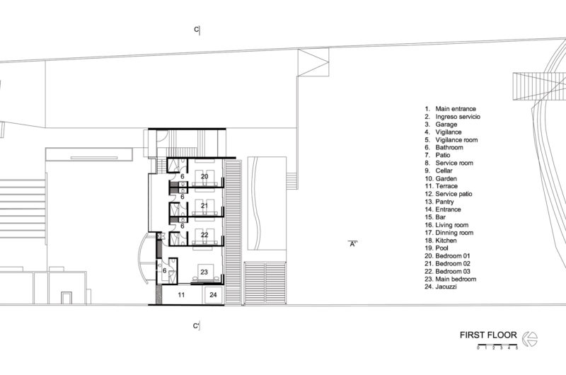
The two-story house features four bedrooms, each with bath and dressing room, as well as a main suite with private terrace, from which one can admire the San Juan Cosala Mountains. The dinning, living and kitchen are connected into a vast area, which also includes a bar and a wine cellar.
Photos by: Mito Covarrubias




































More Similar Articles Like This
Tips for Choosing the Right Blue Paint Color for Your Dining Room
The Superb Villa Verai on Phuket Island, Thailand
Green Gables Home In Fairfield, Connecticut, United States
Unique Click Clack Hotel In Bogota, Colombia
The JKC1 House in Bukit Timah, Singapore
Boracay Resort & Spa in the Fascinating Philippines
70 Shades of Green: Benjamin Moore’s Vibrant Paint Colors
Exceptional Coronado Bay Front Estate in California