Completed in 2009 by Australian architect Paul Burnham, the Cottesloe House is a 4,300 square foot two-story mansion situated in Cottesloe, Western Australia.
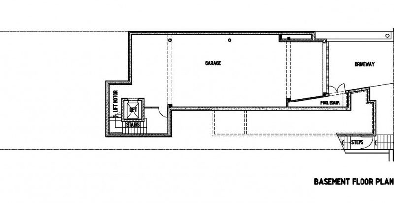
The residence blends perfectly into the surrounding area. The basement garage is set at the street level thanks to the raised site, and the upper level is situated at the maximum height allowed by the planning scheme, to offer beautiful views of the surroundings.
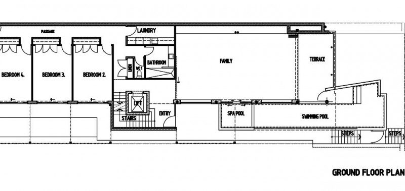
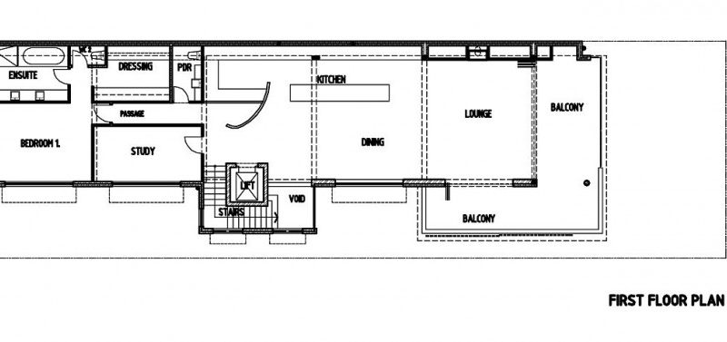
The ground floor includes the children’s bedrooms and living areas, as well as some kitchen facilities, while the first floor features the master bedroom, main living area, study and kitchen. Both living areas are connected with the outside through terraces. The ground floor living area and terrace are enclosed by a spa and lap pool which was elevated at 3 meters above street level, being protected from the outside views. The narrow north facing frontage was designed with numerous windows to allow light, air and the winter sun flow into the house.















More Similar Articles Like This
Beautiful Apartment in Stockholm for $1 Million
A Superb Italianate Mansion in California, USA
Gorgeous And Spacious Home In Sunset Strip
Pure Perfection: Discover the Top White Paint Colors for a Flawless Décor
Saguaro Palm Springs by Joie de Vivre
10 Different Types of Blue Paint Colors
Lawn Care Tips, The Basics For Each SeasonÂ
Spectacular Rooftop Apartment by Innocad