Located in Ingeniero Maschwitz, Buenos Aires Province, Argentina, the House in San Marco was designed by vEstudio, and it was completed in 2013. Even though it features just 2,152 square feet of living space, the residence ensures fantastic living conditions for its lucky owner, especially since it can be found in very close proximity to a beautiful lake.
Aside from its convenient location, this home impresses with large floor-to-ceiling windows at its ground floor, which flood the main living room with natural light throughout the day while ensuring great views of the nearby natural environment. The interiors give off a sense of minimalism and tidiness thanks to the extensive use of concrete, metal and glass. For a touch of contrast, the ceiling features extensive wood elements that add natural warmth.
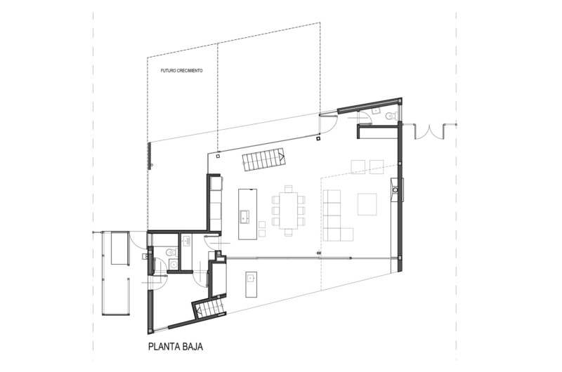
The ground floor incorporates all of the main socialization areas, and it boasts a fireplace, a sofa and a modern glass dining table. The residence is inhabited by a couple without children, but if they decide to add another member to their family at a later date, they can always expand the residence without much difficuly thanks to its straightforward design.
Photos by Andrés Negroni
Summary
The House in San Marco, situated in Ingeniero Maschwitz, Buenos Aires Province, Argentina, is a modern residence designed by vEstudio and completed in 2013. Despite its modest size of 2,152 square feet, the house offers exceptional living conditions, largely due to its prime location near a scenic lake. The design features large floor-to-ceiling windows on the ground floor, which not only bathe the main living area in natural light but also provide stunning views of the surrounding nature. The home’s interior design embodies minimalism and cleanliness, utilizing concrete, metal, and glass extensively, while wooden elements in the ceiling add warmth and contrast. The ground floor serves as the primary socializing space, equipped with a fireplace, a sofa, and a modern glass dining table. Currently home to a childless couple, the residence’s design allows for easy expansion should the need arise, accommodating future family growth.
Related Interests
People fascinated by the House in San Marco may also be interested in exploring various topics related to modern minimalist architecture and interior design. This includes the strategic use of natural light in homes, sustainable building materials, and the integration of nature into residential design to promote wellness and tranquility. There’s a keen interest in adaptable house designs that can evolve with changing family dynamics, including modular homes and expandable living spaces. Additionally, enthusiasts may explore the benefits of living close to natural settings, such as lakes or forests, and how these environments influence architectural design. The trend towards using a mix of raw materials like concrete, metal, and glass, alongside natural elements like wood, to create a balanced, aesthetic, and functional living space is also a popular area of inquiry.















More Similar Articles Like This
Heavenly Lily Beach Resort & Spa In Huvahendhoo, Maldives
The Sophisticated Casa Villa Flamingo in Spain
A Superb Italianate Mansion in California, USA
Vibrant Wood Tones: Explore a Spectrum of Spray Paint Colors!
Different Types Of Foundations For Summer Houses and Garden Buildings
Beautiful Apartment in Stockholm for $1 Million
Spectacular Rooftop Apartment by Innocad
Secluded Naladhu Island in Maldives