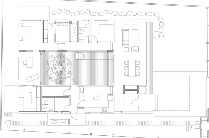
Mandai Courtyard House is a lovely contemporary residence in Mandai, Singapore. It was completed in 2011 by Atelier M+A and it is located in a wonderful serene location in the Upper Seletar Reservoir. The single-story residence was built around a central open courtyard, and it features an orthogonal shape, described by the architects as a “doughnut configuration”.
This allows the dwellers to enjoy the outdoors at any time, protected by the walls of the building. For more outdoor fun, the house features a rooftop terrace that works as an exterior living/dining space and is an ideal spot for relaxation or parties with friends. Mandai Courtyard House is a simple, minimalist residence with a very alluring luxury feel that is almost impossible to resist.
Photos by: Robert Such
























More Similar Articles Like This
Lawn Care Tips, The Basics For Each Season
Plain Geometric Residence Designed by Lidija Dragisic
Best paint colors for the living room
Green Gables Home In Fairfield, Connecticut, United States
The Superb Maradiva Villas Resort & Spa in Mauritius
Beach House CN – A Superb Contemporary Home in Peru
10 Different Types of Blue Paint Colors
Gorgeous And Spacious Home In Sunset Strip