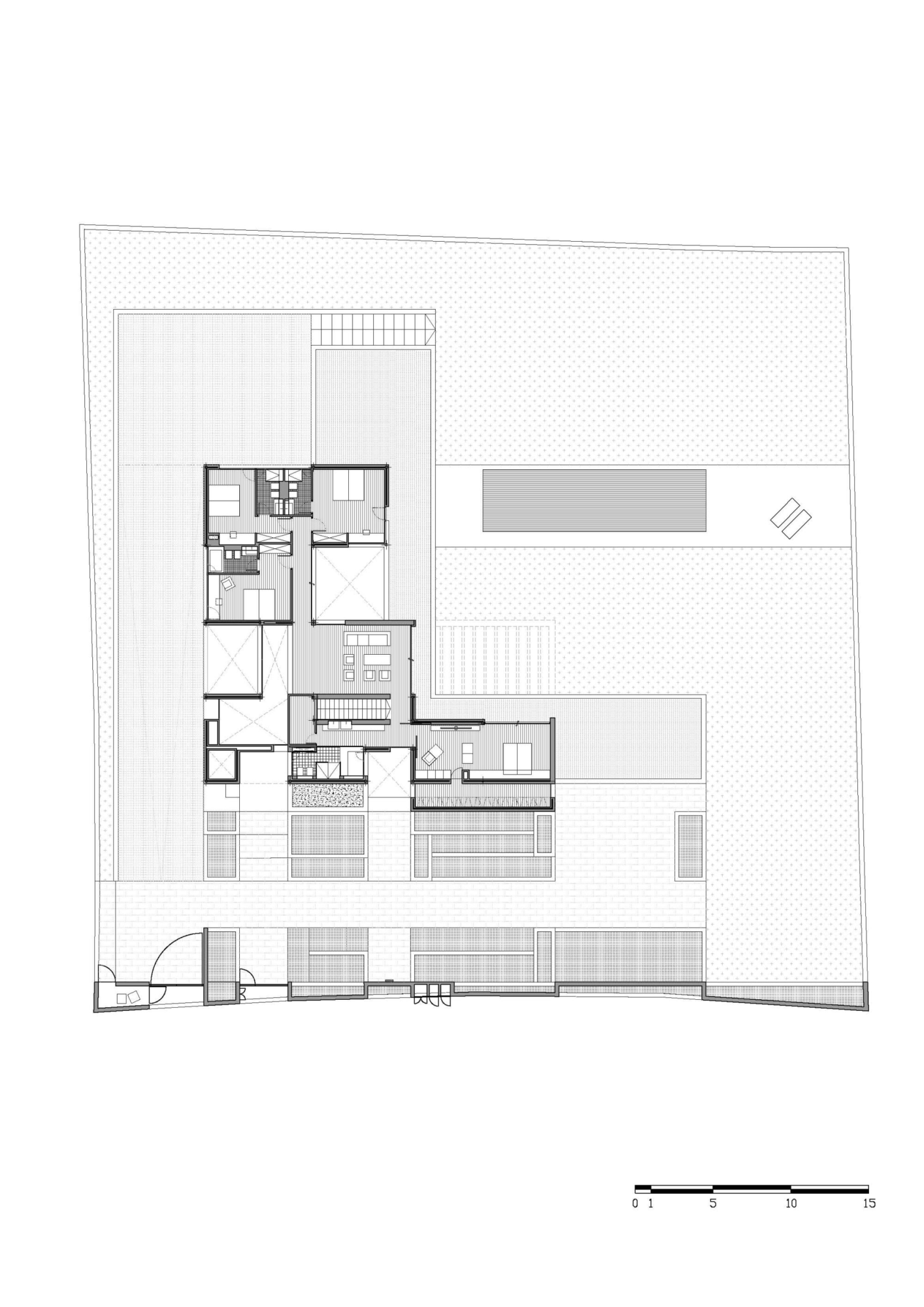
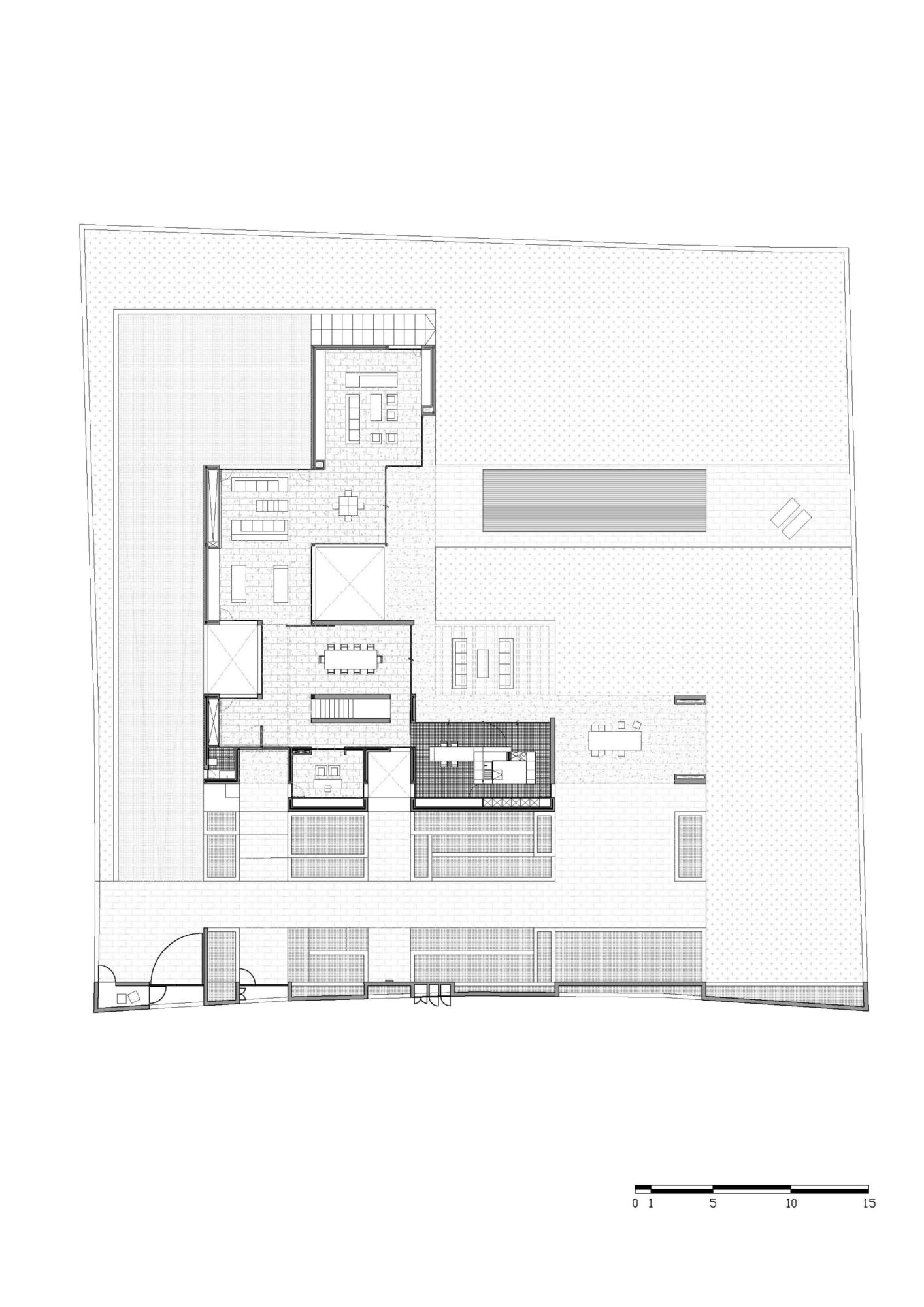
Even though the Vivienda La Florida residence was nestled in a lush, peaceful environment, its close proximity to Madrid’s A6 highway meant that it would be bombarded with sound each and every day. Fortunately, the skilled architects from Otto Medem de la Torriente that were in charge of the project managed to come up with an ingenious solution that would shelter the residents of this fantastic home from the noise as well as from the frightful northern winds.
In the end, it all came down to placement and shape. The home was built using 2 L-shaped pieces that show their backs to the highway, while their front is facing southeast in order to benefit from the warmth of the sun more efficiently.
The abode was built on three different levels, including a basement area, a ground floor and an upper floor. Beautiful on the outside and luxurious on the inside, the Vivienda La Florida residence is definitely spectacular in all regards.



















More Similar Articles Like This
Green Gables Home In Fairfield, Connecticut, United States
Extraordinary Constance Halaveli Maldives Resort
Different Types Of Foundations For Summer Houses and Garden Buildings
6 Garden and Lawn Tips to Get Ready for Spring
The Superb Villa Verai on Phuket Island, Thailand
Outstanding Bodrum Houses in Yalikavak, Turkey
Wonderful Yachting Club Villas at Elounda Beach by Davide Macullo Architects
Gayton Road Residence by Paxton Locher Studio