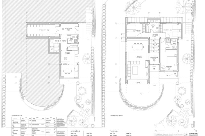
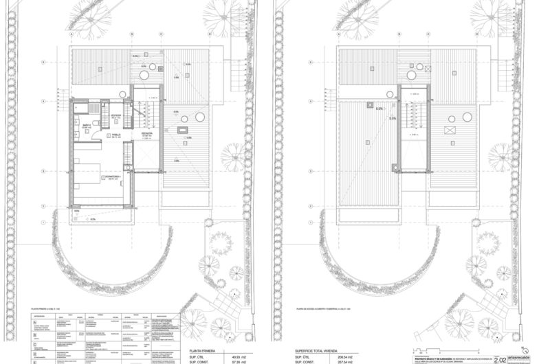
The C&C House was built for a young couple by a company called Arias Recalde Taller de arquitectura, and it can be found in Granada, Spain. The original abode was completely transformed and restored following modern design principles, and it is now able to accommodate a small family in utmost comfort and lavishness.
Even though it might look relatively simple from the outside, this magnificent home is quite impressive on the inside but not in an extravagant way. The rooms were decorated and furnished with simplicity in mind, while the color palette involves predominant shades of light brown and beige complemented by beautiful teal touches for contrast.
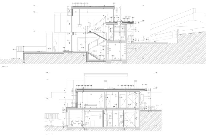
Other details include large windows that ensure fantastic views of the surroundings as well as an interior staircase that provides quick and easy access to some of the most important areas of the house.
Photos by Fernando Alda

















More Similar Articles Like This
Best paint colors for the living room
Amazing Four Seasons Resort Bora Bora
The Sophisticated Casa Villa Flamingo in Spain
How Seattle Lawn Care Service Deals With Overgrown Lawns
5 Ways to Turn Your Yard Into a Fancy Space
Tips for Choosing the Right Blue Paint Color for Your Dining Room
A Superb Italianate Mansion in California, USA
Saguaro Palm Springs by Joie de Vivre